Hibiscus Gardens Amended For Sale
1421 Sw 24th Ct, Fort Lauderdale, FL 33315

$830,000
Продано
Людмила Богатова
Людмила Богатова
Брокер по недвижимости

Детали


  • МЛС номер:A11251497
  • Виртуальный тур: Да
  • Цена предложения: $850,000
  • Цена продажи: $830,000
  • Налоги:$1,495
  • Дата публикации:August 6, 2022
  • Дата продажи: February 15, 2023
  • Дней на рынке:192

Описание


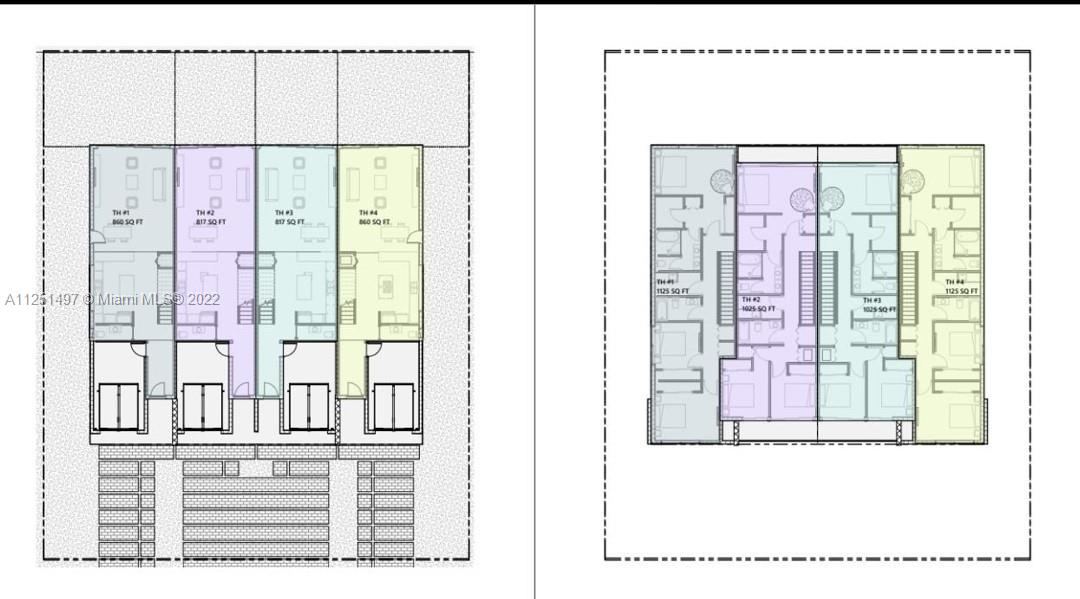
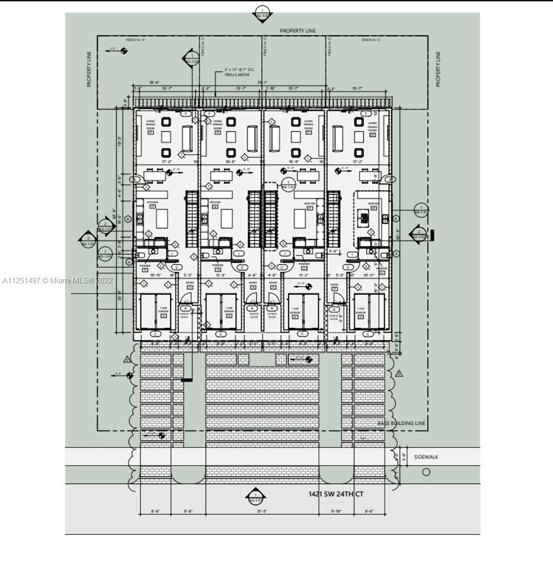
Investor's special!! Four townhomes ready to be built, with already city approved plans. Each townhouse consists of 3 bedrooms 2.5 baths + garage + private garden, approximate square footage 2,000 sq ft. This lot is ready to break ground and start building. Great Fort Lauderdale location. Conveniently located near major highways, downtown, airport and much more! Additional information upon request.

Расположение


Запросить информацию


Людмила Богатова
Людмила Богатова
Брокер по недвижимости