Lauderdale Park 6 33 1 2 Other For Sale
1113 Ne 16th St, Fort Lauderdale, FL 33304

$530,000
Продано
Людмила Богатова
Людмила Богатова
Брокер по недвижимости

Детали


  • МЛС номер:A11214416
  • Виртуальный тур: Да
  • Цена предложения: $530,000
  • Цена продажи: $530,000
  • Налоги:$1,200
  • Дата публикации:May 31, 2022
  • Дата продажи: October 4, 2022
  • Дней на рынке:125

Описание


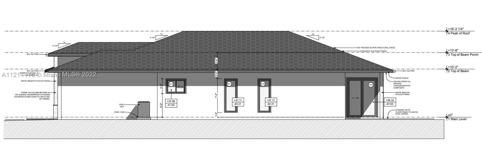
Here is your opportunity to acquire a vacant and ready to build lot in the heart of Fort Lauderdale. All the work and planning has been complete for a 2,759 sqft home or you can amend and build to suit. This stunning lot and carefully planned home features 4 bedrooms, 3.5 bathrooms, 10 foot ceilings, double car garage, lots of natural light, spa/pool and much more! Live within minutes from the beach, schools, Galleria Mall, shopping, cafe's, restaurants, Los Olas and all that Fort Lauderdale has to offer. Impact fee's, city fee's and permit fee's are paid. Don't spend valuable time waiting for permits and instead start making memories in your dream home.

Расположение


Запросить информацию


Людмила Богатова
Людмила Богатова
Брокер по недвижимости