Coral Ridge Galt Add 1 For Sale
2825 Ne 27th St, Fort Lauderdale, FL 33306

$1,080,000
Продано
Людмила Богатова
Людмила Богатова
Брокер по недвижимости

Детали


  • МЛС номер:A10881204
  • Виртуальный тур: Да
  • Цена предложения: $1,249,000
  • Цена продажи: $1,080,000
  • Налоги:$14,130
  • На канале:Да
  • Дата публикации:June 24, 2020
  • Дата продажи: January 15, 2021
  • Дней на рынке:204

Описание


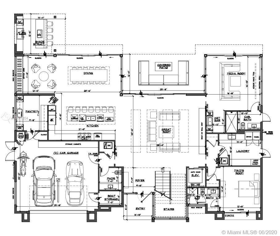
Beautiful waterfront vacant lot with direct views to the intracoastal. The lot has 100 feet of canal front with no fixed bridges making this perfect for the boat lovers. Close to waterfront dining and minutes away to Port Everglades Inlet giving you access to the ocean. The seller is selling this with the design seen on the pictures which has a beautiful modern home with 7,594 total square feet, 5 bedrooms , 6 1/2 Baths, media room, gym, pool and much more. Please see floor plans for more details.

Особенности


  • На канале:CanalFront

Расположение


Запросить информацию


Людмила Богатова
Людмила Богатова
Брокер по недвижимости