14 55 40 Fairmont Acres S 3 bedroom Single Family House For Sale
6970 Sw 124 St, Pinecrest, FL 33156

$642,500
Продано
Людмила Богатова
Людмила Богатова
Брокер по недвижимости

Детали


  • МЛС номер:A2065580
  • Виртуальный тур: Да
  • Цена предложения: $659,000
  • Цена продажи: $642,500
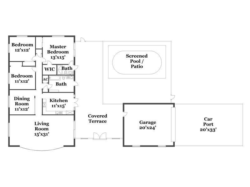
  • Жилая площадь: 2358 фут² / 219 м²
  • Цена за фут/метр: $272 / $2,933
  • Комнаты:3
  • Полных ванн:2
  • Налоги:$4,920
  • Год строительства:1961
  • Дата публикации:January 30, 2015
  • Дата продажи: April 3, 2015
  • Дней на рынке:62

Описание


Jennings Patio Home offers the best of South Florida Living by bringing the outside in! Enter through the stunning double doors w/custom stained &tempered glass into your private oasis. Sunlight,pool and patio greet you with your main living quarters on t he left through the single pane French impact doors and your spacious two car garage is on the right.The kitchen was refreshed several years ago w/oak cabinets, granite/top appl & Italian tile. Well maintained, casual, comfortable and affordable!

Особенности


  • Полы:Tile
  • Интерьер:BedroomonMainLevel, FirstFloorEntry, LivingDiningRoom
  • Экстерьер:Fence, Patio, Shed

Запросить информацию


Людмила Богатова
Людмила Богатова
Брокер по недвижимости