Orchard Sub No 4 3 bedroom Single Family House For Sale
4300 Post Av, Miami Beach, FL 33140

$585,000
Продано
Людмила Богатова
Людмила Богатова
Брокер по недвижимости

Детали


  • МЛС номер:A1646298
  • Виртуальный тур: Да
  • Цена предложения: $599,000
  • Цена продажи: $585,000
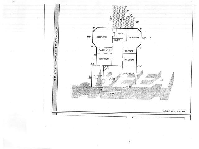
  • Жилая площадь: 2032 фут² / 189 м²
  • Цена за фут/метр: $288 / $3,099
  • Комнаты:3
  • Полных ванн:2
  • Налоги:$4,111
  • Год строительства:1935
  • Дата публикации:May 29, 2012
  • Дата продажи: April 19, 2013
  • Дней на рынке:324

Описание


*** SHOWING ASSIST ONLY**panish jewel box gem, on a peaceful street & walkable to beach! 1935 charmer: arched windows & doors, formal dining rm, built-in Deco bookshelves in the Fl rm, oak & cherry floors & baseboards, even an old-time telephone niche. Pl us modern amenities galore, from stainless steel kitchen appliances to electric shutter to huge walk-in master bedrm closet. Out back a 275' screened porch leads to mango trees, birds of paradise & more! Seller will listen to all offers! love to cobroke!

Особенности


  • Полы:Hardwood, Tile, Wood
  • Интерьер:BuiltInFeatures, DiningArea, SeparateFormalDiningRoom, EatInKitchen, FrenchDoorsAtriumDoors, FirstFloorEntry, Fireplace, MainLevelPrimary, TubShower, WalkInClosets, Attic
  • Экстерьер:Deck, EnclosedPorch, Fence, FruitTrees, Shed, ShuttersElectric, StormSecurityShutters, PropaneTankLeased

Запросить информацию


Людмила Богатова
Людмила Богатова
Брокер по недвижимости