Garden Sub Amd Pl 6 bedroom Single Family House For Sale
969 W 34th St, Miami Beach, FL 33140

$2,700,000
Новый Продажа
Людмила Богатова
Людмила Богатова
Брокер по недвижимости

Детали


  • МЛС номер:A11990202
  • Виртуальный тур: Да
  • Цена предложения: $2,700,000
  • Жилая площадь: 5227 фут² / 486 м²
  • Цена за фут/метр: $517 / $5,560
  • Комнаты:6
  • Полных ванн:6
  • Неполных ванн:1
  • Налоги:$29,008
  • Год строительства:1928
  • Дата публикации:April 13, 2026
  • Дней на рынке:20

Описание


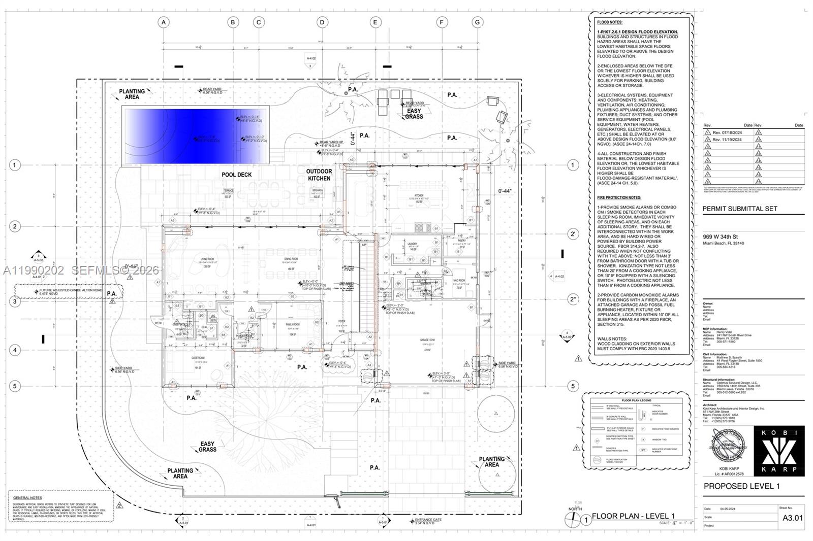
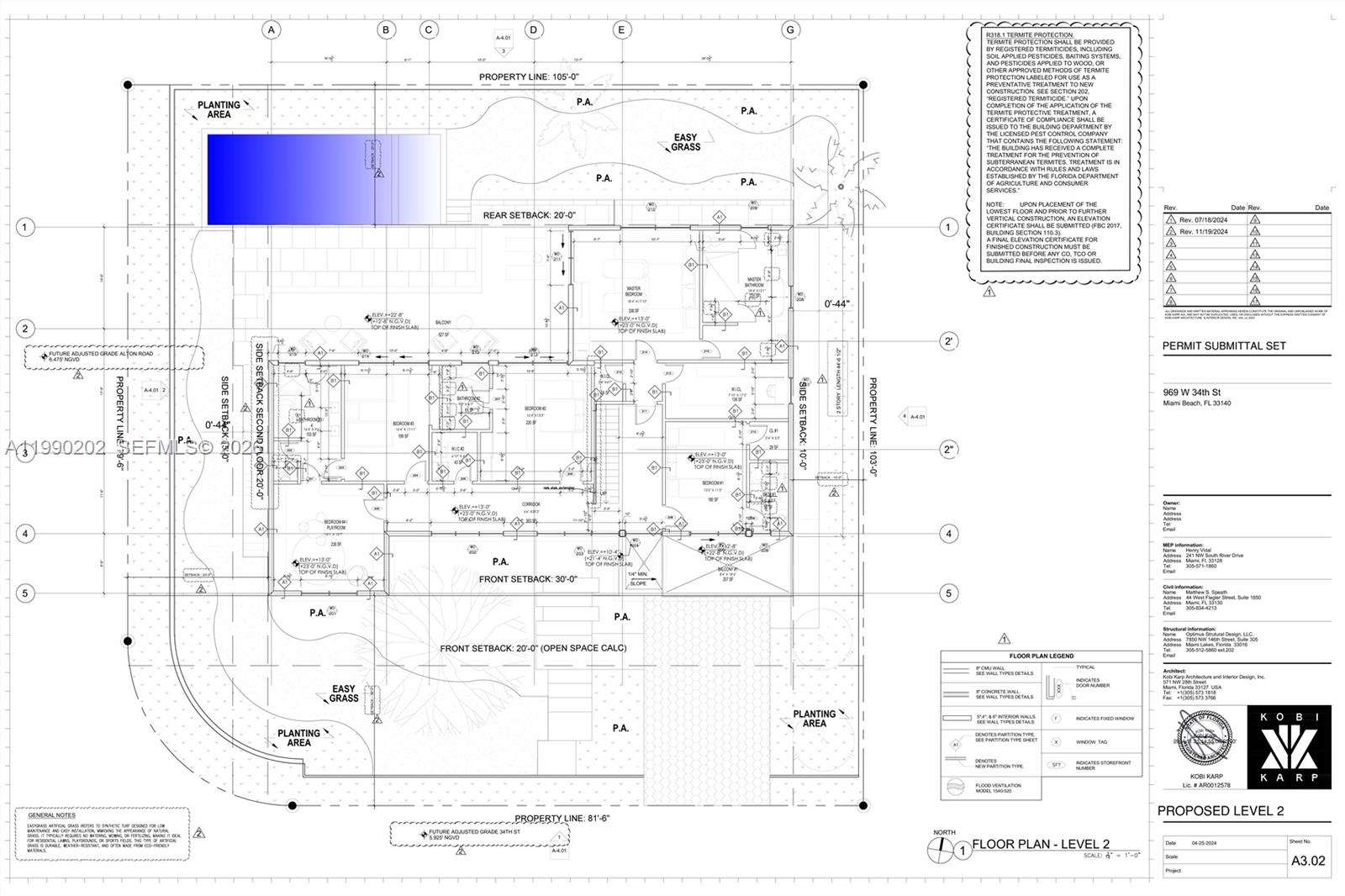
Discover this prime opportunity to build your dream home on a 10,694 SF lot with APPROVED plans by Kobi Karp Architecture. The proposed 5,227 SF luxury residence features 6 bedrooms, 6.5 baths, a master suite with a private balcony, a flexible garage or gym space, and soaring 11-foot ceilings on the first floor. Designed for modern living, the plans include a gourmet kitchen, maid’s quarters, and a seamless indoor-outdoor flow. The backyard is an entertainer's dream, complete with a resort-style pool, sun shelf, outdoor kitchen, and BBQ area surrounded by lush landscaping. This FEMA-compliant property is elevated for flood protection and perfectly situated near top schools, beaches, and shopping. Don't miss this rare opportunity to create your custom Miami Beach oasis.

Особенности


  • Полы:Other
  • Интерьер:BreakfastBar, BedroomOnMainLevel, DiningArea, SeparateFormalDiningRoom, DualSinks, FirstFloorEntry, KitchenDiningCombo, Pantry, SeparateShower, WalkInClosets
  • Экстерьер:Balcony, Barbecue, Deck, RoomForPool

Расположение


Price History


Please sign in to view this information

Запросить информацию


Людмила Богатова
Людмила Богатова
Брокер по недвижимости