Curry Sub 2 bedroom Single Family House For Sale
795 Nw 42nd St, Miami, FL 33127

$745,000
Продажа
Людмила Богатова
Людмила Богатова
Брокер по недвижимости

Детали


  • МЛС номер:A11996720
  • Виртуальный тур: Да
  • Цена предложения: $745,000
  • Жилая площадь: 1523 фут² / 141 м²
  • Цена за фут/метр: $489 / $5,265
  • Комнаты:2
  • Полных ванн:2
  • Налоги:$9,471
  • Год строительства:1947
  • Дата публикации:April 7, 2026
  • Дней на рынке:48

Описание


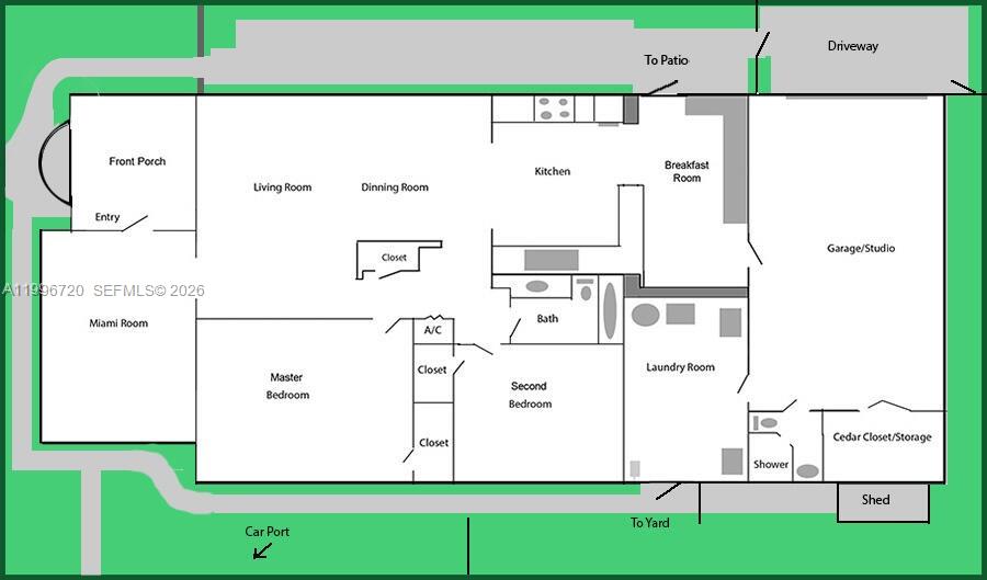
Actual bldg sf per city 2,109. Agents welcome. Rare corner double-lot home bordering Buena Vista and Wynwood in quiet Hadley Park. Move-in ready, no deferred maint. On slab Flood Zone minimal (Zone X, 11’ elev). Pass through the classic wrought iron fence & gate into this 10,000 sf property. Privacy hedging, giant mango tree, well water irrigation. Car port for 2 cars + 2 uncovered, all inside electronic gate. Room in back for pool. Step into the bright Florida entry room with huge windows. Ceramic tile floors throughout. Well laid-out kitchen, granite countertops. Newly remodeled bath with tub. Formal dining area plus back breakfast room opening to side patio. In back, attached fully functional garage with A/C & full bath. Large laundry room. Original Bahama hurricane shutters.

Особенности


  • Полы:Tile
  • Интерьер:BedroomOnMainLevel, FirstFloorEntry, Workshop
  • Экстерьер:Fence, FruitTrees, Porch, Patio, RoomForPool, Shed, StormSecurityShutters

Расположение


Price History


Please sign in to view this information

Запросить информацию


Людмила Богатова
Людмила Богатова
Брокер по недвижимости