Edgewater Park Amd Pl 4 bedroom Single Family House For Sale
472 S Royal Poinciana Blvd, Miami Springs, FL 33166

$1,295,000
Продажа
Людмила Богатова
Людмила Богатова
Брокер по недвижимости

Детали


  • МЛС номер:A11979262
  • Виртуальный тур: Да
  • Цена предложения: $1,295,000
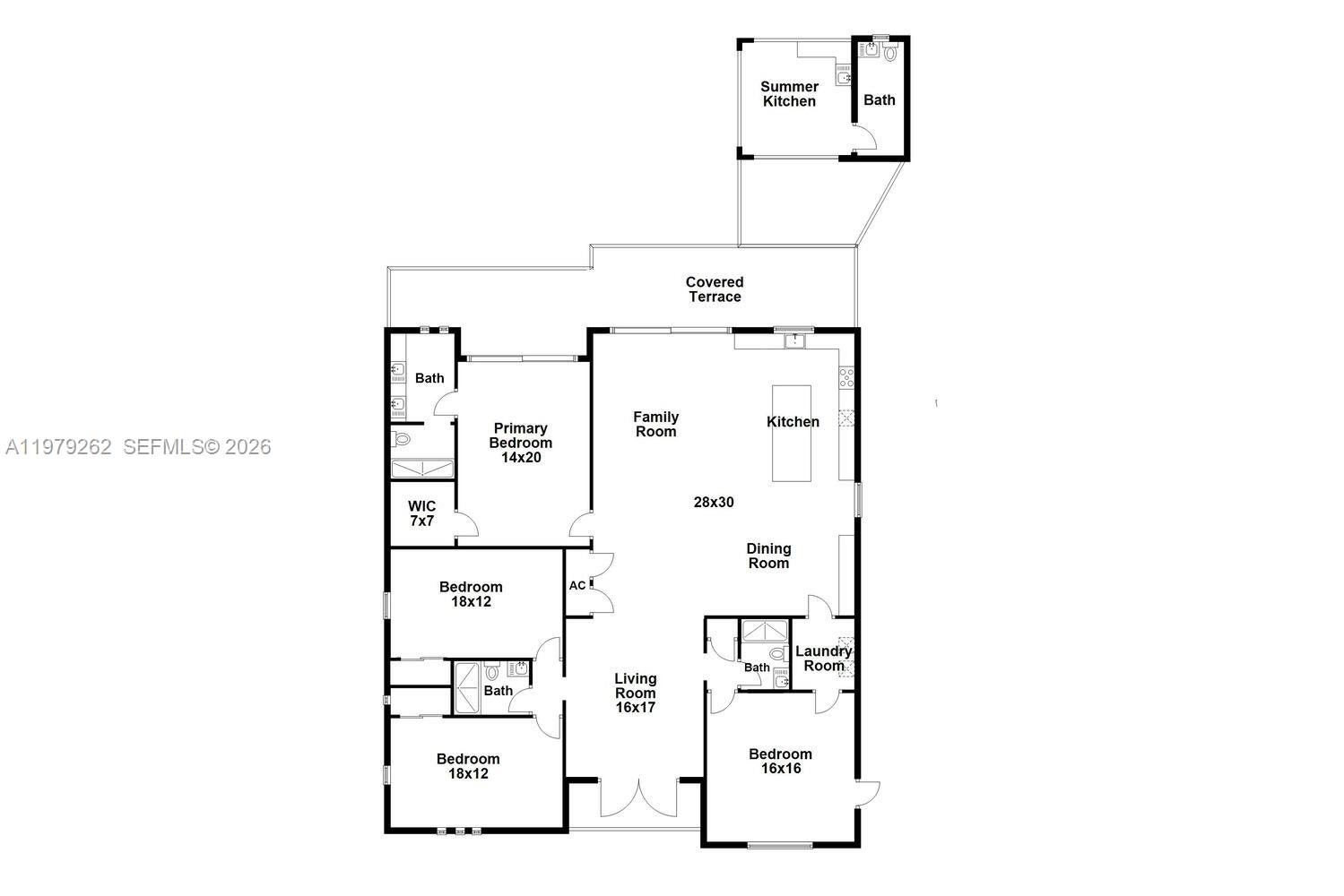
  • Жилая площадь: 2634 фут² / 245 м²
  • Цена за фут/метр: $492 / $5,292
  • Комнаты:4
  • Полных ванн:3
  • Неполных ванн:1
  • Налоги:$7,406
  • Год строительства:2024
  • Дата публикации:March 11, 2026
  • Дней на рынке:46

Описание


Experience modern living in Miami Springs with this newly built residence offering 4 spacious bedrooms & 3.5 bathrooms. Designed with a clean contemporary aesthetic, the home features elegant 48 x 48 inch porcelain flooring throughout. The gourmet kitchen includes stainless steel appliances, sleek cabinetry & stylish finishes ideal for everyday living & entertaining.Additional highlights: a new roof, new AC system, & impact resistant windows & doors. Situated on a fully fenced oversized lot, the property features a striking modern driveway with oversized concrete slabs & grass joints creating a sleek architectural entrance with ample parking. The expansive backyard offers excellent potential for a modern pool & outdoor entertaining area, complemented by a convenient outdoor cabana bath.

Особенности


  • Полы:Tile
  • Интерьер:BedroomOnMainLevel, FirstFloorEntry
  • Экстерьер:Fence, Patio, SecurityHighImpactDoors

Расположение


Price History


Please sign in to view this information

Запросить информацию


Людмила Богатова
Людмила Богатова
Брокер по недвижимости