Fulford By Sea Sec L 3 bedroom Single Family House For Sale
1645 Ne 180th St, North Miami Beach, FL 33162

$695,000
Продано
Людмила Богатова
Людмила Богатова
Брокер по недвижимости

Детали


  • МЛС номер:A11974145
  • Виртуальный тур: Да
  • Цена предложения: $725,000
  • Цена продажи: $695,000
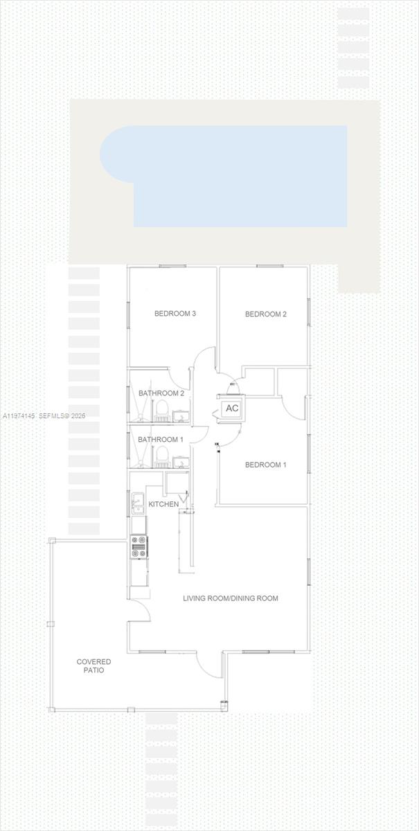
  • Жилая площадь: 1140 фут² / 106 м²
  • Цена за фут/метр: $610 / $6,562
  • Комнаты:3
  • Полных ванн:2
  • Налоги:$6,722
  • Год строительства:1952
  • Дата публикации:March 1, 2026
  • Дата продажи: April 10, 2026
  • Дней на рынке:39

Описание


Amazing Opportunity in North Miami Beach. Most extensive renovation in the neighborhood. 3BR/2BA pool home with ample space for 5 car parking, a boat, jet skis, etc. Perfect location: walking distance to shopping center with Publix Supermarket, Golf Course, House of Worship. Situated near Biscayne Blvd with quick access to highways, 5min to Aventura Mall, and only 10 minutes to the beach. Completely renovated turnkey property: new porcelain tile flooring throughout, modern bathrooms, a brand-new, welcoming modern open kitchen with granite countertops, and new high-end GE Café stainless-steel Wi-Fi-controlled appliances. Major upgrades include a New central A/C, New roof, New impact doors and windows, complete electrical rewiring and new plumbing, a tankless water heater, and fully remodeled bathrooms. All renovations were fully permitted by the City of North Miami Beach. Huge tropical fenced backyard with mature landscaping and an oversized 30x15 ft pool—perfect for relaxing, entertaining, or creating your own outdoor oasis. The front garden features an extended covered patio and offers space for bbq and a sitting area. This beautifully modernized home is ready for you to enjoy. This 3/2 can easily be converted in 2/2 for an oversized master suite with 2 pool access. No detail was overlooked in this transformation— A Rare chance for a primary home, vacation getaway, or investment property. Short-term/Airbnb allowed with license.

Особенности


  • Полы:CeramicTile, Tile
  • Интерьер:BedroomOnMainLevel, EatInKitchen, FamilyDiningRoom, FirstFloorEntry, HighCeilings, LivingDiningRoom, MainLevelPrimary, Other, VaultedCeilings, Attic
  • Экстерьер:Deck, Fence, Porch, Patio, SecurityHighImpactDoors

Расположение


Запросить информацию


Людмила Богатова
Людмила Богатова
Брокер по недвижимости