Pembroke Pines Regional 3 bedroom Single Family House For Sale
15857 Nw 4th Ct, Pembroke Pines, FL 33028

$715,000
Продажа
Людмила Богатова
Людмила Богатова
Брокер по недвижимости

Детали


  • МЛС номер:A11973917
  • Виртуальный тур: Да
  • Цена предложения: $715,000
  • Жилая площадь: 2087 фут² / 194 м²
  • Цена за фут/метр: $343 / $3,688
  • Комнаты:3
  • Полных ванн:3
  • Обслуживание:$260
  • Налоги:$7,479
  • Год строительства:1998
  • Дата публикации:February 28, 2026
  • Дней на рынке:46

Описание


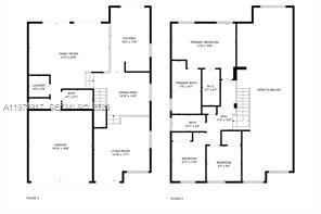
Gorgeous Tropical Paradise Pool Home in Prestigious Towngate Community. This stunning home offers the potential to become a spacious 4-bedroom haven, as shown in the attached floor plan. Lovingly maintained by its original family, it’s now ready to welcome yours! Nestled in the highly sought-after Governor's Run within the Towngate community, the home boasts a prime location just west of I-75 and south of Sheridan Street. The master association provides coverage of common areas, cable, and internet, ensuring a hassle-free lifestyle. Additionally, the home's irrigation system runs on well water, and it's equipped with storm shutters for added protection. Families will also appreciate the top-rated schools in the area, known for being among the best in the county. Don't miss this opportunity. living area 2,276

Особенности


  • Полы:CeramicTile, Tile
  • Интерьер:FirstFloorEntry, UpperLevelPrimary, Bar
  • Экстерьер:Fence, SecurityHighImpactDoors

Расположение


Price History


Please sign in to view this information

Запросить информацию


Людмила Богатова
Людмила Богатова
Брокер по недвижимости