Portofino Estates 5 bedroom Single Family House For Sale
4113 Ne 22nd Ln, Homestead, FL 33033

$540,000
Продажа
Людмила Богатова
Людмила Богатова
Брокер по недвижимости

Детали


  • МЛС номер:A11947181
  • Виртуальный тур: Да
  • Цена предложения: $540,000
  • Жилая площадь: 2494 фут² / 232 м²
  • Цена за фут/метр: $217 / $2,331
  • Комнаты:5
  • Полных ванн:3
  • Обслуживание:$154
  • Налоги:$11,236
  • Год строительства:2004
  • Дата публикации:January 23, 2026
  • Дней на рынке:101

Описание


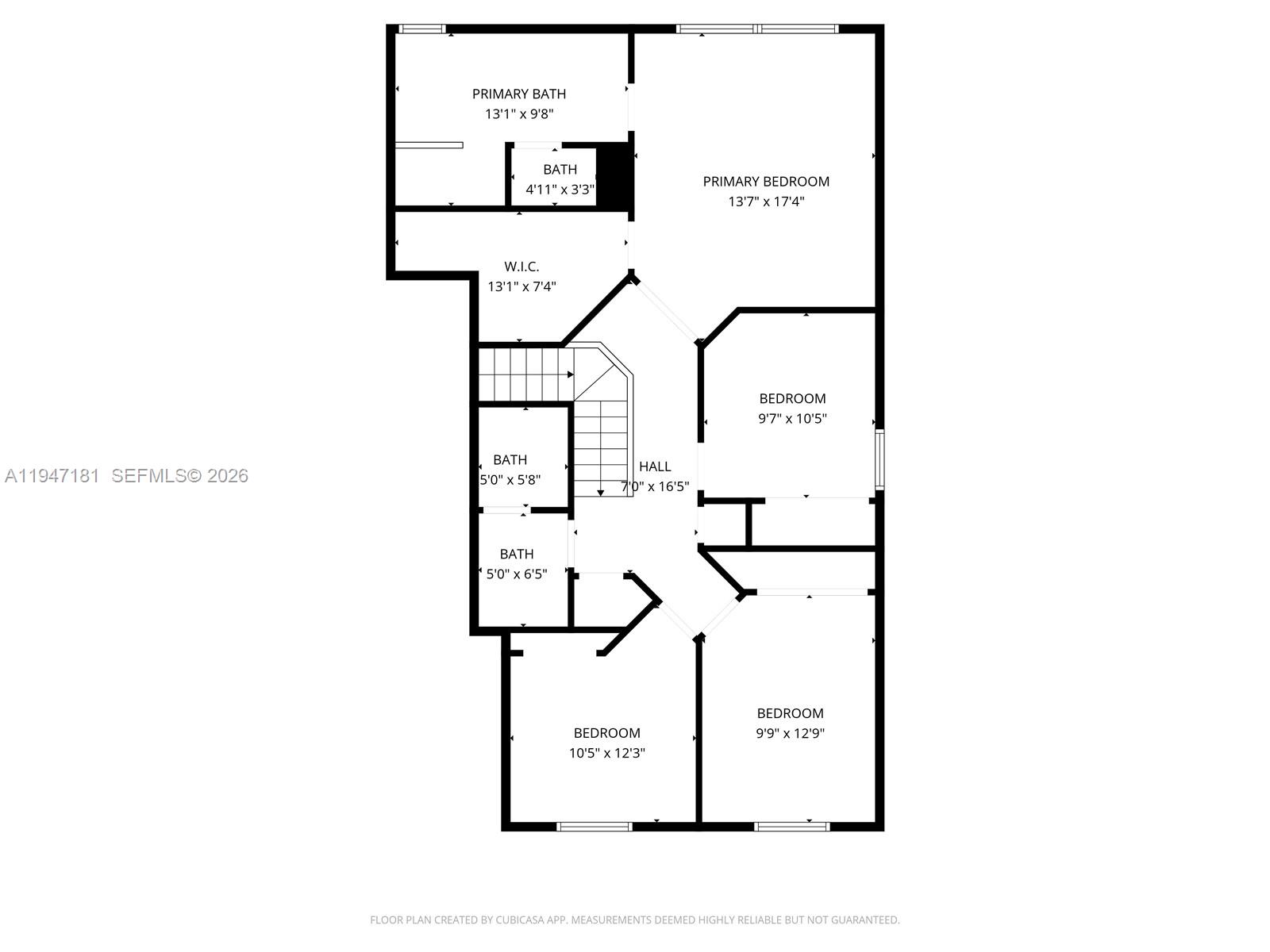
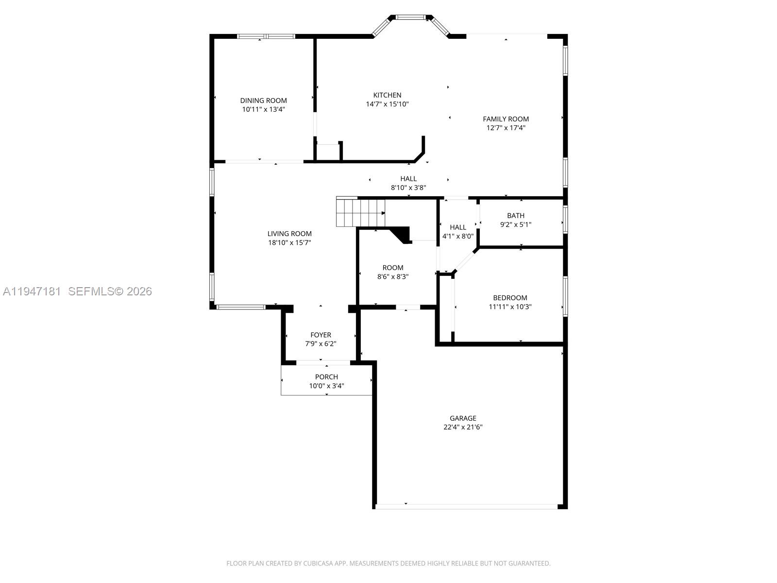
Tucked into a prime corner setting in Portofino Estates at Waterstone, this inviting home welcomes you with light, space, and a layout designed for real life. From the moment you step inside, the double height main living area creates an open, airy atmosphere that feels both impressive and comfortable, perfect for relaxing evenings or hosting friends and family. The kitchen opens seamlessly to a sunny breakfast nook and family area, featuring stainless steel appliances that add a clean, modern touch and make everyday cooking and entertaining effortless. A bedroom and full bath on the main level offer ideal flexibility for guests, multi-generational living, or a private home office, adding everyday convenience. Upstairs, the primary suite serves as a private retreat, complete with a spacious walk-in closet, a spa-style bath with dual sinks, a soaking Roman tub, and a separate shower: a calm, comfortable space to unwind at the end of the day.Outside, the expansive corner lot opens the door to outdoor living, with ample space for a pool, outdoor kitchen, or your own backyard retreat, whether you imagine weekend gatherings, play space, or a peaceful garden escape. Residents of Waterstone’s Portofino Estates enjoy access to a clubhouse, pools, playgrounds and scenic walking paths, all just minutes from shopping, dining, schools, and major highways. Schedule your private showing and experience it for yourself, your next chapter starts here!

Особенности


  • Полы:Hardwood, Tile, Wood
  • Интерьер:BedroomOnMainLevel, BreakfastArea, DiningArea, SeparateFormalDiningRoom, DualSinks, EntranceFoyer, FrenchDoorsAtriumDoors, FirstFloorEntry, HighCeilings, SplitBedrooms, SeparateShower, UpperLevelPrimary, WalkInClosets
  • Экстерьер:Lighting, Porch, RoomForPool, StormSecurityShutters

Расположение


Price History


Please sign in to view this information

Запросить информацию


Людмила Богатова
Людмила Богатова
Брокер по недвижимости