Ponce Road Estates 6 bedroom Single Family House For Sale
4871 Sw 74th Ter, Miami, FL 33143

$8,499,999
Продажа
Людмила Богатова
Людмила Богатова
Брокер по недвижимости

Детали


  • МЛС номер:A11933394
  • Виртуальный тур: Да
  • Цена предложения: $8,499,999
  • Жилая площадь: 5521 фут² / 513 м²
  • Цена за фут/метр: $1,540 / $16,572
  • Комнаты:6
  • Полных ванн:5
  • Неполных ванн:1
  • Обслуживание:$1,600
  • Налоги:$24,804
  • Год строительства:1941
  • Дата публикации:January 5, 2026
  • Дней на рынке:118

Описание


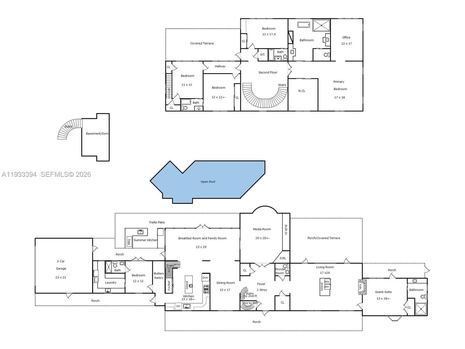
Tucked within the exclusive, gated enclave of Ponce Road Estates—home to only five residences—this Ponce-Davis estate is truly the crown jewel. Set on a generous 3 / 4-acre lot, the 6-bedroom residence (plus home office) showcases exquisite craftsmanship and thoughtful details at every turn. Refined moldings, impact glass, a beautifully remodeled island kitchen with Viking gas range, dual ovens, dual sinks, and a walk-in pantry, along with tastefully updated bathrooms, speak to its elevated design. The primary suite is Architectural Digest–worthy, featuring a spa-inspired bath and an enviable, Instagram-ready closet. Enjoy movie nights in the private media room, morning workouts in the gym, or al fresco gatherings on expansive terraces and balconies overlooking lush, mature gardens. The pool, patio, and summer kitchen create an idyllic backdrop for unforgettable entertaining. An oversized two-car garage and covered carport add convenience, while the community’s own tennis, pickleball, and basketball court complete this rare offering. Located within the super desirable A+ rated Sunset Elementary School. Per appraisers calculations, total living area is 5,521', total adjusted area is 6,313' and total area under roof is 7,937'. A Very Special Home.

Особенности


  • Полы:Hardwood, Tile, Wood
  • Интерьер:WetBar, Bidet, BuiltInFeatures, BedroomOnMainLevel, BreakfastArea, ClosetCabinetry, DiningArea, SeparateFormalDiningRoom, DualSinks, EntranceFoyer, EatInKitchen, FrenchDoorsAtriumDoors, FirstFloorEntry, Fireplace, Pantry, SittingAreaInPrimary, SeparateShower, UpperLevelPrimary, WalkInClosets
  • Экстерьер:Fence, SecurityHighImpactDoors, Lighting, OutdoorGrill, Patio, StormSecurityShutters, TennisCourts

Price History


Please sign in to view this information

Запросить информацию


Людмила Богатова
Людмила Богатова
Брокер по недвижимости