Village Grove 3 bedroom Single Family House For Sale
13400 Sw 78th Ct, Pinecrest, FL 33156

$1,340,000
Продано
Людмила Богатова
Людмила Богатова
Брокер по недвижимости

Детали


  • МЛС номер:A11925859
  • Виртуальный тур: Да
  • Цена предложения: $1,420,000
  • Цена продажи: $1,340,000
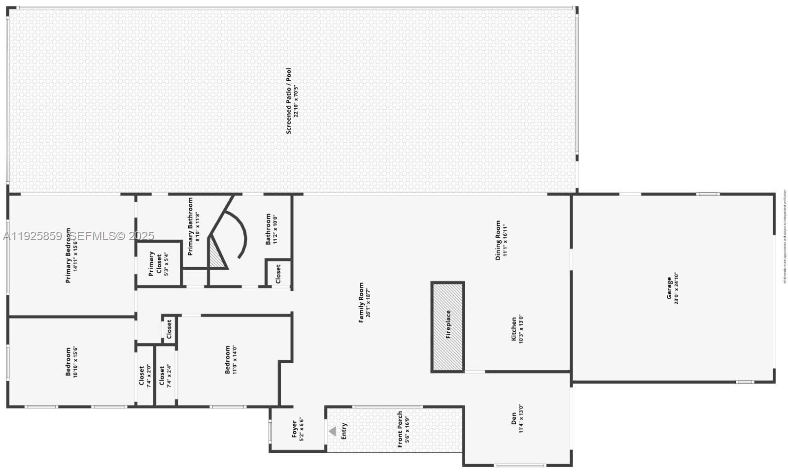
  • Жилая площадь: 2050 фут² / 190 м²
  • Цена за фут/метр: $654 / $7,036
  • Комнаты:3
  • Полных ванн:2
  • Налоги:$4,790
  • Год строительства:1960
  • Дата публикации:December 5, 2025
  • Дата продажи: March 26, 2026
  • Дней на рынке:110

Описание


Welcome to the beautiful Village of Pinecrest! This corner home sits on quiet street and features 3 Bedrooms 2 Bathrooms with an amazing open floor plan. As you step in you are greeted with an amazing pool view that showcases floor to ceiling pocket impact doors inviting all of the outdoor nature inside. The kitchen has been updated with Brand new LG appliances and a cozy fireplace that connects to the dinning room and family living room. There is an additional Den that can be used as a TV room or a kids play room. The home has full impact windows, beautiful covered screened Pool, with mature lush trees, avacados and large hedges for privacy, 2 car garage, washer and dryer, amazing neighbors, walking distance to A+ schools, near The Falls Mall, and countless shops and restuarants nearby!

Особенности


  • Полы:Hardwood, Tile, Wood
  • Интерьер:BuiltInFeatures, BedroomOnMainLevel, ClosetCabinetry, FrenchDoorsAtriumDoors, FirstFloorEntry, Fireplace, Pantry
  • Экстерьер:EnclosedPorch, FruitTrees, SecurityHighImpactDoors, OutdoorGrill, Porch, Patio

Расположение


Запросить информацию


Людмила Богатова
Людмила Богатова
Брокер по недвижимости