Orchard Estates 4 bedroom Single Family House For Sale
9340 Sw 178th Street, Palmetto Bay, FL 33157

$925,000
Продажа
Людмила Богатова
Людмила Богатова
Брокер по недвижимости

Детали


  • МЛС номер:A11922702
  • Виртуальный тур: Да
  • Цена предложения: $925,000
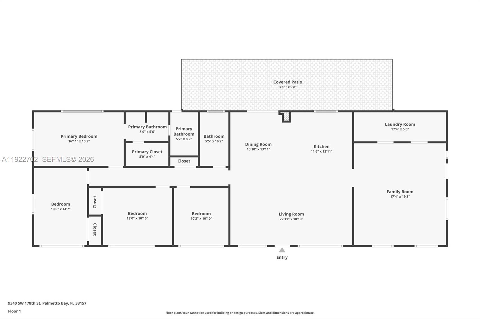
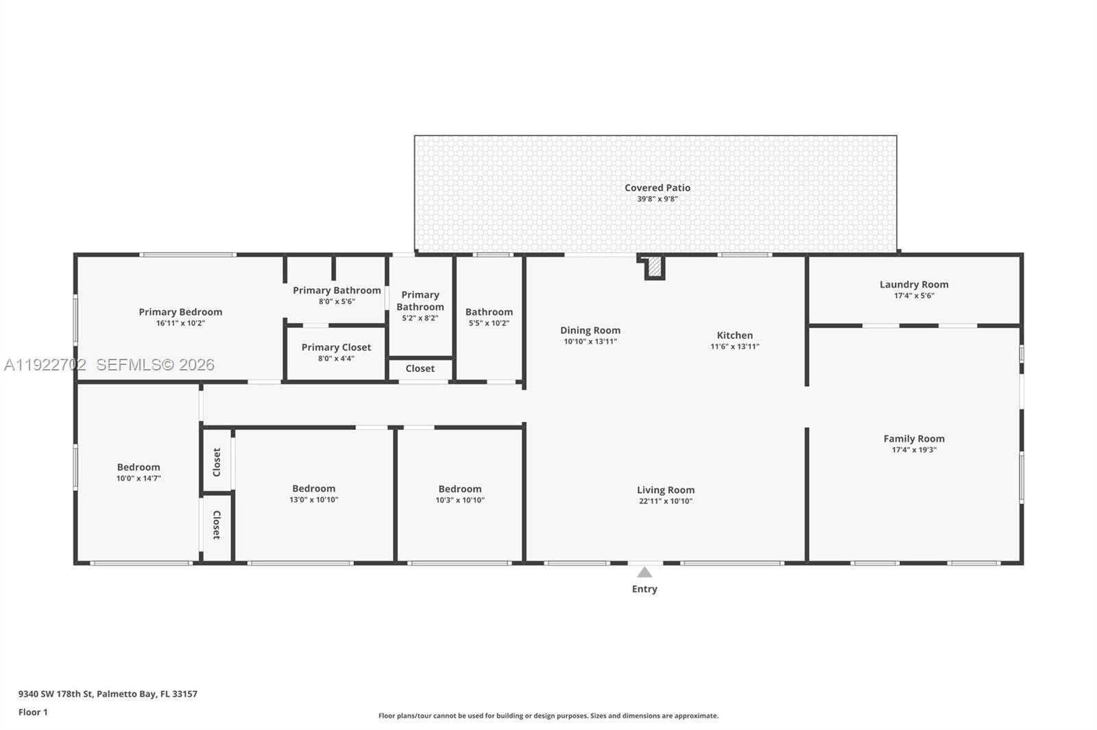
  • Жилая площадь: 2028 фут² / 188 м²
  • Цена за фут/метр: $456 / $4,910
  • Комнаты:4
  • Полных ванн:2
  • Налоги:$3,918
  • Год строительства:1958
  • Дата публикации:December 3, 2025
  • Дней на рынке:150

Описание


Welcome to 9340 SW 178 Street — a beautifully updated 4-bedroom pool home that blends modern comfort with true South Florida living. Set on an impressive 16,560 sq ft lot, this residence stands out from the moment you arrive with clean curb appeal, mature landscaping and a private feel that is hard to find in today’s market. Step inside to an open floorplan filled with natural light, plantation shutters, impact windows and a large family room that creates the perfect setting for everyday living and effortless entertaining. The remodeled kitchen serves as the heart of the home with quartz countertops, solid wood cabinetry and stainless steel appliances, offering a clean, timeless design. The home features a newer roof, PVC pipes, remodeled guest bath and a thoughtful layout that maximizes space and comfort. All four bedrooms offer flexibility for family, guests, working from home or creating the ideal media or hobby space. Outdoors, the oversized yard is where the property truly shines. The 16k lot provides room for a boat, RV, future additions and still leaves plenty of green space to enjoy. Fruit trees, a sparkling pool and covered areas make this the kind of backyard families dream about — private, peaceful and built for gatherings. Located in a quiet, established neighborhood near top schools, parks, restaurants, Black Point Marina and major roadways, 9240 SW 178 Terrace offers the rare combination of space, upgrades and an unbeatable location.

Особенности


  • Полы:Hardwood, Wood
  • Интерьер:DiningArea, SeparateFormalDiningRoom, FrenchDoorsAtriumDoors, FirstFloorEntry, KitchenIsland, MainLevelPrimary, StackedBedrooms, WalkInClosets
  • Экстерьер:Fence, FruitTrees, SecurityHighImpactDoors, Lighting, Patio, Shed

Расположение


Price History


Please sign in to view this information

Запросить информацию


Людмила Богатова
Людмила Богатова
Брокер по недвижимости