Miramar Sec 6 4 bedroom Single Family House For Sale
2601 Acapulco Dr, Miramar, FL 33023

$415,000
Продано
Людмила Богатова
Людмила Богатова
Брокер по недвижимости

Детали


  • МЛС номер:A11915901
  • Виртуальный тур: Да
  • Цена предложения: $450,000
  • Цена продажи: $415,000
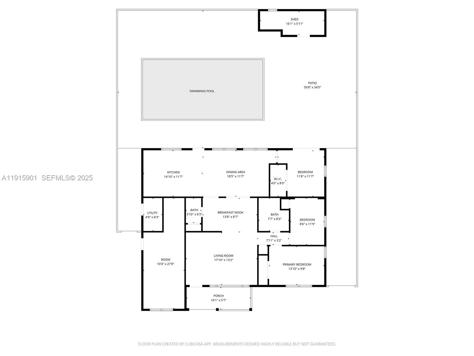
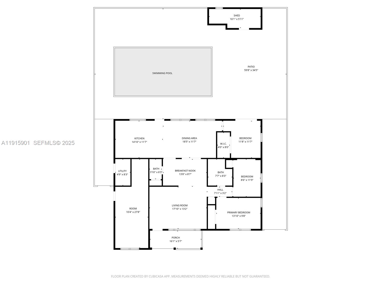
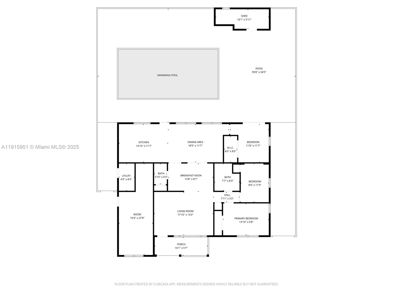
  • Жилая площадь: 1506 фут² / 140 м²
  • Цена за фут/метр: $276 / $2,966
  • Комнаты:4
  • Полных ванн:2
  • Неполных ванн:1
  • Налоги:$9,471
  • Год строительства:1959
  • Дата публикации:November 19, 2025
  • Дата продажи: March 3, 2026
  • Дней на рынке:103

Описание


Handyman special! This Miramar home is full of potential and ready for the buyer who loves a good project. The main house offers 3 bedrooms and 1.5 baths, with the half bath easily convertible into a full second bathroom. Enjoy a renovated kitchen with newer appliances and large windows that bring in great natural light. A fully equipped in-law suite with its own bedroom, bath, and kitchenette provides rental income potential or the option to create a 4BR/2.5BA layout. The standout 25x18 pool is perfect for entertaining or relaxing. Ideal for investors. Schedule your tour today. Easy to Show.

Особенности


  • Полы:Other
  • Интерьер:BedroomOnMainLevel, FirstFloorEntry
  • Экстерьер:Shed

Виртуальный тур


Расположение


Запросить информацию


Людмила Богатова
Людмила Богатова
Брокер по недвижимости