Unplatted 9 bedroom Single Family House For Sale
13805 Old Cutler Rd, Palmetto Bay, FL 33158

$9,495,000
Продажа
Людмила Богатова
Людмила Богатова
Брокер по недвижимости

Детали


  • МЛС номер:A11908901
  • Цена предложения: $9,495,000
  • Комнаты:9
  • Полных ванн:9
  • Неполных ванн:1
  • Налоги:$23,816
  • Год строительства:2026
  • Дата публикации:November 5, 2025
  • Дней на рынке:179

Описание


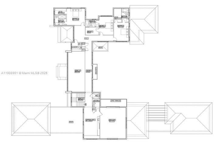
This brand-new masterpiece set on over an acre of land, located on the beautiful, scenic Old Cutler Road features 9 bedrooms and 9 1/2 bathrooms across 11,011 SF. The newly-constructed residence blends sophistication and modern comfort with floor-to-ceiling windows, marble baths, and seamless indoor-outdoor living. The gourmet kitchen includes Subzero refrigeration, Wolf appliances, and custom wood cabinetry. Enjoy covered terraces, a heated pool and jacuzzi, summer kitchen, and smart home technology. Additional highlights include an elevator, guest house/exercise room, movie/game room, and a 3 car garage with space for parking lifts—a true showcase of refined craftsmanship and contemporary design. Estimated completion will be February 2026

Особенности


  • Полы:Marble
  • Интерьер:FirstFloorEntry, UpperLevelPrimary
  • Экстерьер:Patio

Расположение


Price History


Please sign in to view this information

Запросить информацию


Людмила Богатова
Людмила Богатова
Брокер по недвижимости