Miami Shores Sec 3 6 bedroom Single Family House For Sale
440 Ne 94th St, Miami Shores, FL 33138

$3,350,000
Продано
Людмила Богатова
Людмила Богатова
Брокер по недвижимости

Детали


  • МЛС номер:A11886607
  • Виртуальный тур: Да
  • Цена предложения: $3,599,000
  • Цена продажи: $3,350,000
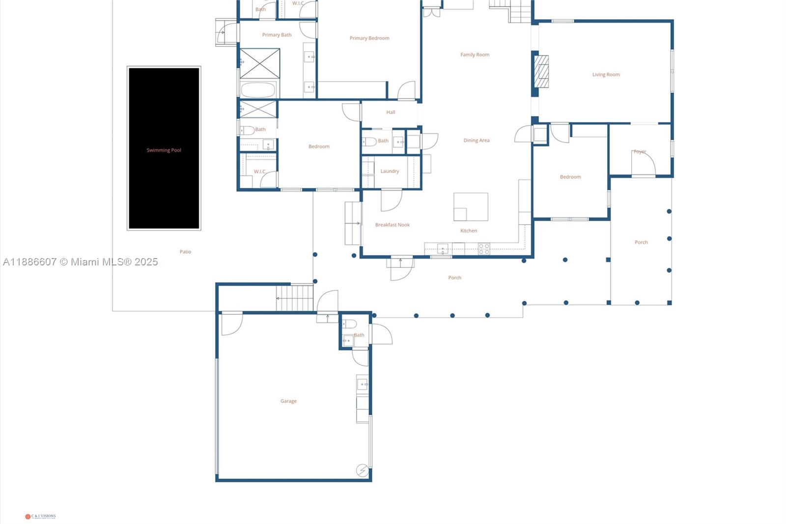
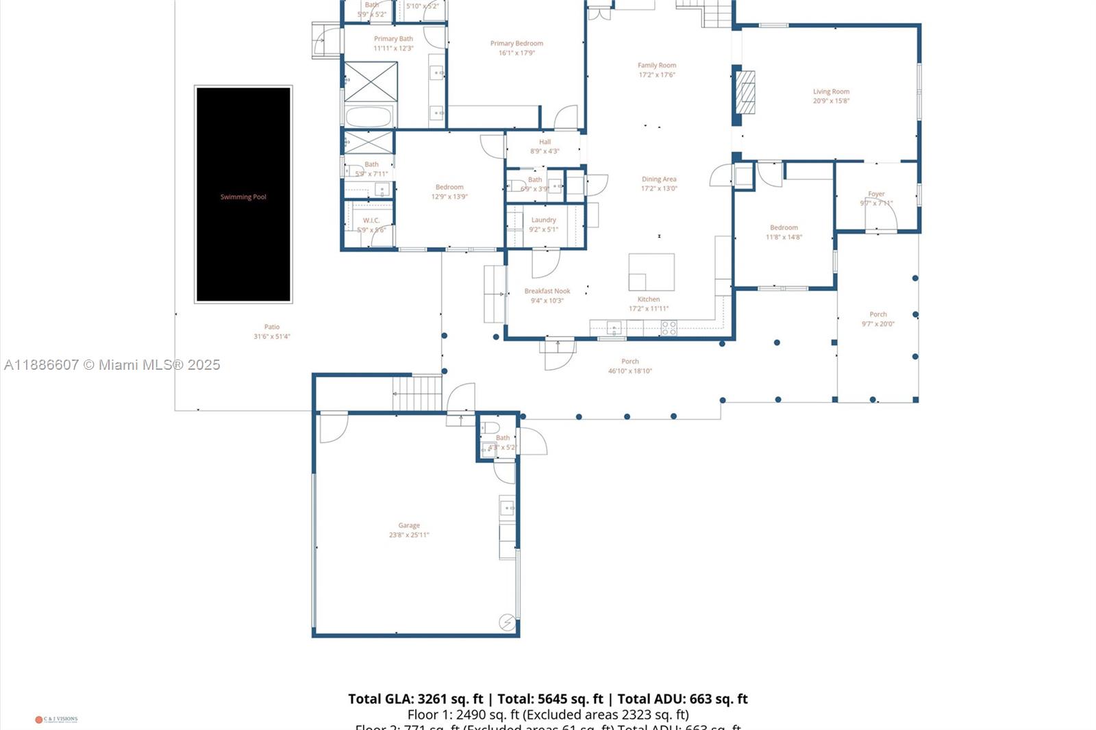
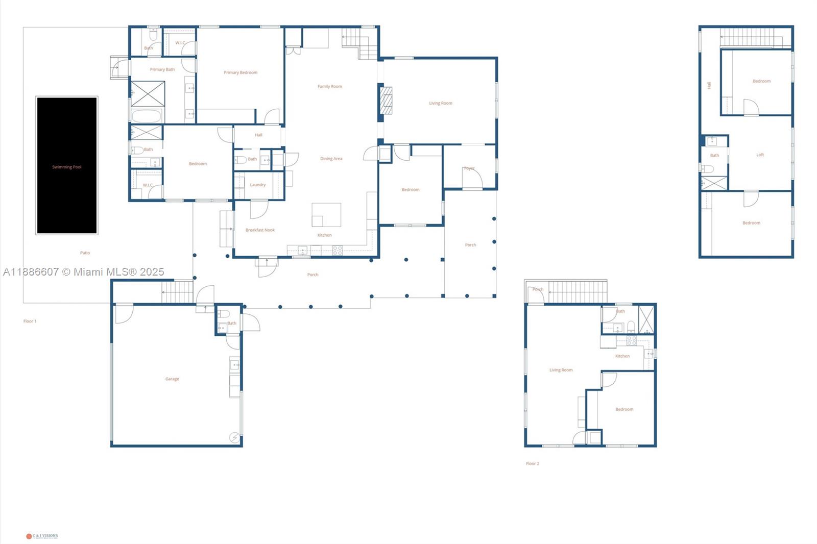
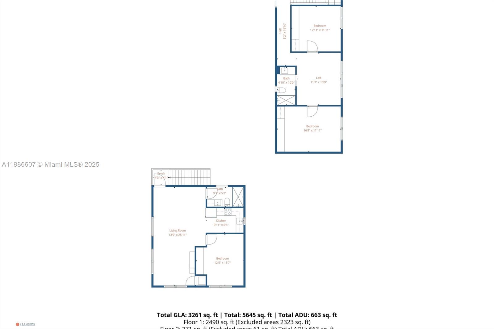
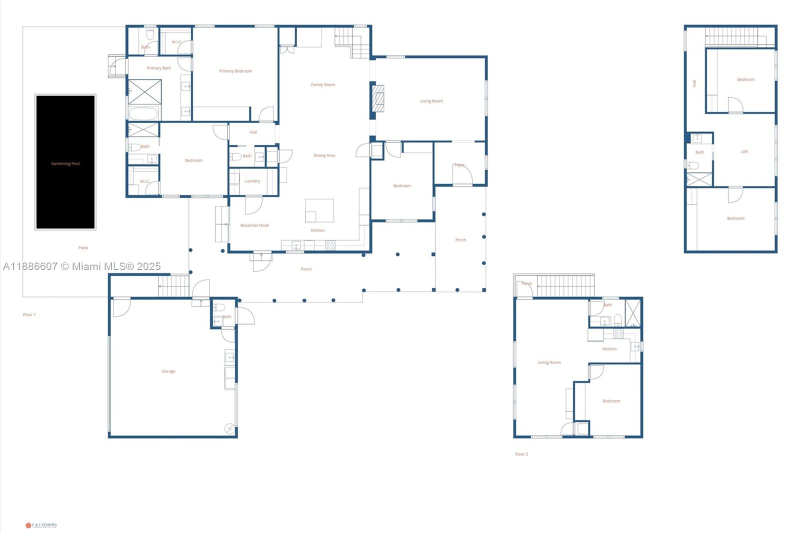
  • Жилая площадь: 4081 фут² / 379 м²
  • Цена за фут/метр: $821 / $8,836
  • Комнаты:6
  • Полных ванн:4
  • Неполных ванн:2
  • Налоги:$10,249
  • Год строительства:1975
  • Дата публикации:October 5, 2025
  • Дата продажи: December 4, 2025
  • Дней на рынке:59

Описание


Casa Encantada is a spectacular 4,081 SF Mediterranean residence in Miami Shores featuring a 2-car garage and a 900 SF detached 1-bed, 1-bath guest house. Fully upgraded with a new roof, impact windows and doors, imported Travertine flooring, saltwater pool, new fencing, and interior/exterior surround sound, it sits on a 12,800 SF lot. The chef’s kitchen offers custom cabinetry, a large island, and high-end finishes. The main-level primary suite includes a spa-style bath. Outdoors, tiled walkways connect a resort-style pool, jacuzzi, and multiple areas for lounging and entertaining. Minutes from beaches, top schools, shopping, and dining, Casa Encantada delivers modern function with enduring Mediterranean charm.

Особенности


  • Полы:Marble
  • Интерьер:BuiltInFeatures, BedroomOnMainLevel, BreakfastArea, ClosetCabinetry, EntranceFoyer, EatInKitchen, FirstFloorEntry, Fireplace, KitchenIsland, LivingDiningRoom, MainLevelPrimary, Pantry, SplitBedrooms, WalkInClosets
  • Экстерьер:Barbecue, Deck, Fence, FruitTrees, SecurityHighImpactDoors, Lighting, Porch, Patio

Расположение


Запросить информацию


Людмила Богатова
Людмила Богатова
Брокер по недвижимости