Irons Manor 3Rd Addn 3 bedroom Single Family House For Sale
845 Ne 127th St, North Miami, FL 33161

$485,000
Продано
Людмила Богатова
Людмила Богатова
Брокер по недвижимости

Детали


  • МЛС номер:A11856394
  • Виртуальный тур: Да
  • Цена предложения: $519,000
  • Цена продажи: $485,000
  • Жилая площадь: 1652 фут² / 153 м²
  • Цена за фут/метр: $294 / $3,160
  • Комнаты:3
  • Полных ванн:2
  • Налоги:$2,046
  • Год строительства:1949
  • Дата публикации:August 12, 2025
  • Дата продажи: October 29, 2025
  • Дней на рынке:77

Описание


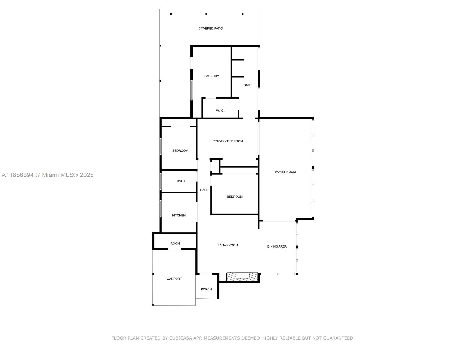
Renovation Opportunity in Prime area in the City of North Miami! This 3-bedroom, 2-bath home offers 1,652 SF of living space and a total of 2,020 SF (including a 1-car carport and covered patio) on a generous 9,100 SF lot (65' x 140'), as per county records. Featuring vaulted wood beam ceilings and a spacious family room, the home is filled with original charm and solid bones—perfect for a full renovation. Owned by the same family for many years, this property needs significant updates, including a new roof, but offers endless potential for customization and value-add. Whether you're an investor or a homeowner ready to take on a project, this is a rare chance to create something special in a desirable North Miami location.Floor plan available!

Особенности


  • Полы:Carpet, Other, Tile
  • Интерьер:BedroomOnMainLevel, FirstFloorEntry
  • Экстерьер:Patio

Расположение


Запросить информацию


Людмила Богатова
Людмила Богатова
Брокер по недвижимости