Southwood 3 bedroom Single Family House For Sale
395 Pace Avenue, Lehigh Acres, FL 33974

$399,900
Продажа
Людмила Богатова
Людмила Богатова
Брокер по недвижимости

Детали


  • МЛС номер:A11854342
  • Виртуальный тур: Да
  • Цена предложения: $399,900
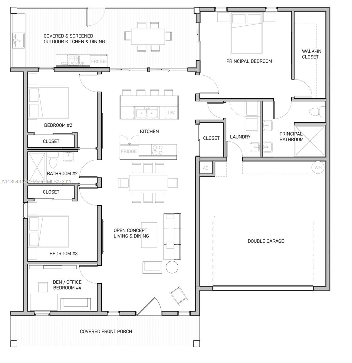
  • Жилая площадь: 1680 фут² / 156 м²
  • Цена за фут/метр: $238 / $2,562
  • Комнаты:3
  • Полных ванн:2
  • Налоги:$3,785
  • Год строительства:2023
  • Дата публикации:August 7, 2025
  • Дней на рынке:262

Описание


Architecturally distinctive modern home with soaring 18-ft ceilings. The only new-build in Lehigh under a half-million to offer a pool! Tall impact windows fill the open plan in natural light, while large-format tile grounds every room. Unlike typical builds, this home has full CBS construction—including interior walls—for enhanced soundproofing and superior storm protection. Furnished living room, outdoor loungers, umbrellas, electric fireplace, RO system, security cameras, appliances, washer/dryer & finished closets all convey. 3-BD/2-BA plan + private den. Screened, covered patio holds full outdoor kitchen; beyond, a 12×28 travertine-decked pool with tanning ledge invites effortless indoor-outdoor living. Oversized 2-car garage, broad drive, generous fenced lot. No HOA. Ready now.

Особенности


  • Полы:Tile
  • Интерьер:BedroomOnMainLevel, DualSinks, EatInKitchen, FirstFloorEntry, Fireplace, LivingDiningRoom, MainLevelPrimary, Other, SplitBedrooms, VaultedCeilings, WalkInClosets
  • Экстерьер:EnclosedPorch, Fence, Other, SecurityHighImpactDoors

Расположение


Price History


Please sign in to view this information

Запросить информацию


Людмила Богатова
Людмила Богатова
Брокер по недвижимости