Miramar Isles Sec 3 3 bedroom Single Family House For Sale
6633 Coconut Dr, Miramar, FL 33023

$550,000
Продано
Людмила Богатова
Людмила Богатова
Брокер по недвижимости

Детали


  • МЛС номер:A11697439
  • Виртуальный тур: Да
  • Цена предложения: $525,000
  • Цена продажи: $550,000
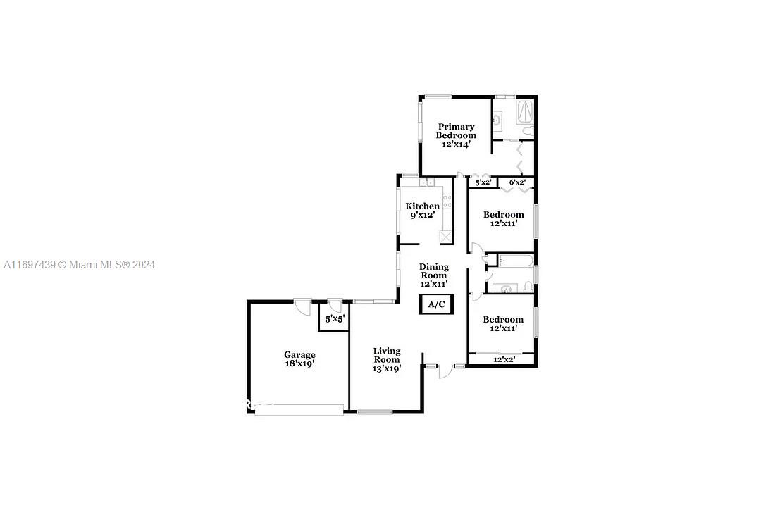
  • Жилая площадь: 1440 фут² / 134 м²
  • Цена за фут/метр: $382 / $4,111
  • Комнаты:3
  • Полных ванн:2
  • Налоги:$8,481
  • Год строительства:1966
  • Дата публикации:December 12, 2024
  • Дата продажи: February 4, 2025
  • Дней на рынке:53

Описание


Welcome to this beautiful single family home in Miramar! This spacious property features 3 bedrooms, 2 bathrooms, and a 1 car garage, providing ample space for your family to grow and thrive. The in-ground pool is perfect for cooling off on hot summer days and hosting gatherings with friends and loved ones. The open floor plan allows for easy flow between the living room, dining area, and kitchen, making it ideal for entertaining. The master bedroom boasts a private ensuite bathroom, offering a peaceful retreat at the end of a long day. With its convenient location near schools, parks, and shopping centers, this home is the perfect place to create lasting memories with your family. Don't miss out on this fantastic opportunity to make this house your forever home!

Особенности


  • Полы:Other, Tile
  • Интерьер:Other
  • Экстерьер:Fence, Porch, Patio

Расположение


Запросить информацию


Людмила Богатова
Людмила Богатова
Брокер по недвижимости