Coconut Grove Terr 4 bedroom Single Family House For Sale
3620 Harlano St, Coral Gables, FL 33134

$2,525,000
Продано
Людмила Богатова
Людмила Богатова
Брокер по недвижимости

Детали


  • МЛС номер:A11625919
  • Виртуальный тур: Да
  • Цена предложения: $2,649,000
  • Цена продажи: $2,525,000
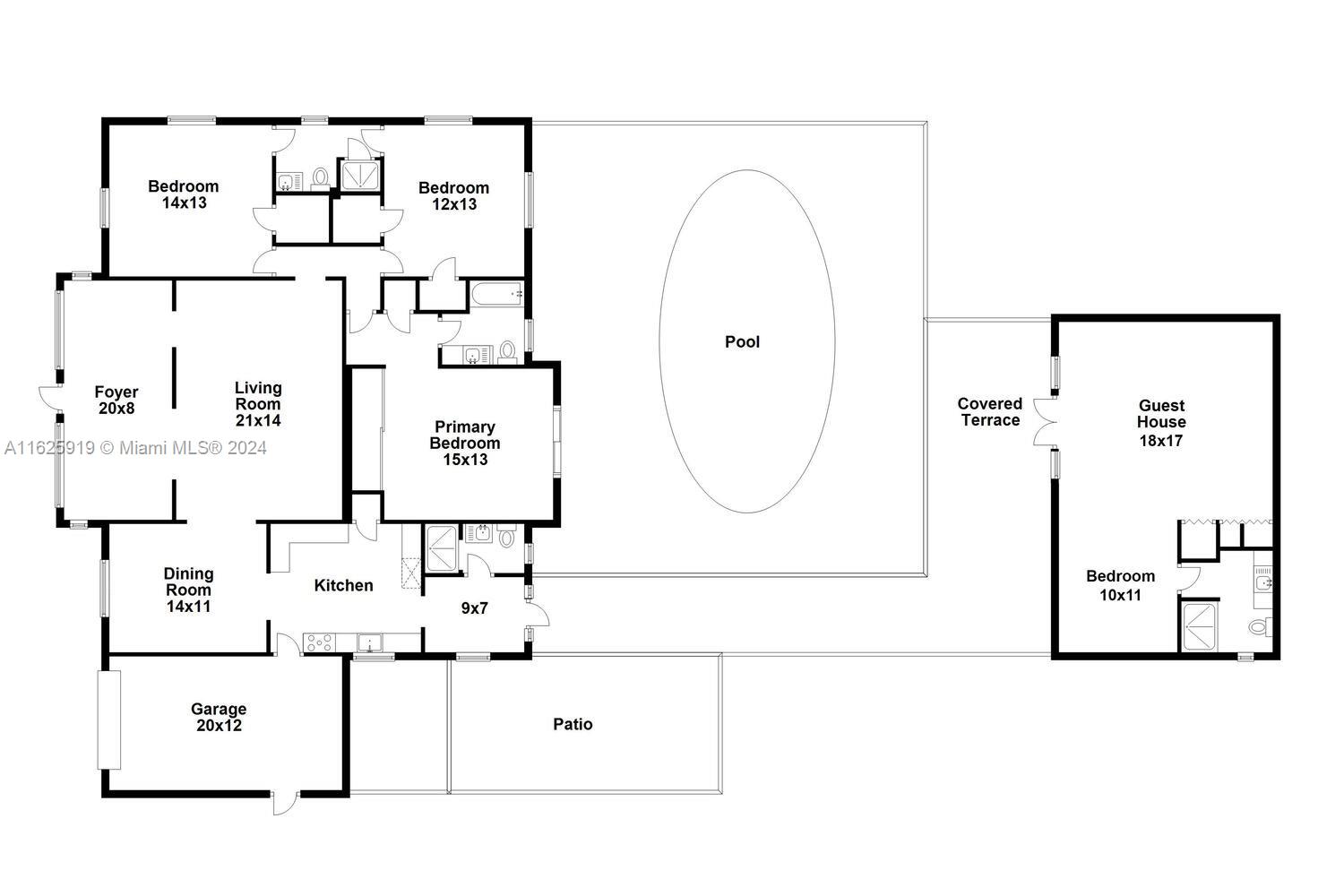
  • Жилая площадь: 2535 фут² / 236 м²
  • Цена за фут/метр: $996 / $10,721
  • Комнаты:4
  • Полных ванн:4
  • Налоги:$13,730
  • Год строительства:1939
  • Дата публикации:July 18, 2024
  • Дата продажи: August 14, 2024
  • Дней на рынке:26

Описание


Nestled on a quiet and pristine tree-lined street, this George Fink original blends the charm of its 1930’s design with stylish, modern touches throughout. Impact windows, 2018 roof, elegant built-ins, and restored white oak floors are just a few of many updates. Situated on an expansive 11,396 sqft lot with mature landscaping, one car garage and twin driveways, this home boasts a well appointed 3/3 main house and 1/1 guest house, great for in-laws or home office. Step outside into a beautiful backyard oasis complete with wet bar, built-in grill and resort-style saline pool, perfect for family living and entertaining! Ideally located just blocks from the CG Library, Youth Center and Somerset Gables Academy! This warm and inviting gem is one you don’t want to miss!

Особенности


  • Полы:Tile, Wood
  • Интерьер:BuiltinFeatures, BedroomonMainLevel, DiningArea, SeparateFormalDiningRoom, EntranceFoyer, FrenchDoorsAtriumDoors, FirstFloorEntry, Fireplace, LivingDiningRoom, MainLevelPrimary, Pantry, StackedBedrooms, TubShower
  • Экстерьер:Awnings, Barbecue, Fence, Lighting, OutdoorGrill, Patio, SecurityHighImpactDoors

Расположение


Запросить информацию


Людмила Богатова
Людмила Богатова
Брокер по недвижимости