Coral Gables Sec B 3 bedroom Single Family House For Sale
708 Majorca Ave, Coral Gables, FL 33134

$1,450,000
Продано
Людмила Богатова
Людмила Богатова
Брокер по недвижимости

Детали


  • МЛС номер:A11572263
  • Виртуальный тур: Да
  • Цена предложения: $1,450,000
  • Цена продажи: $1,450,000
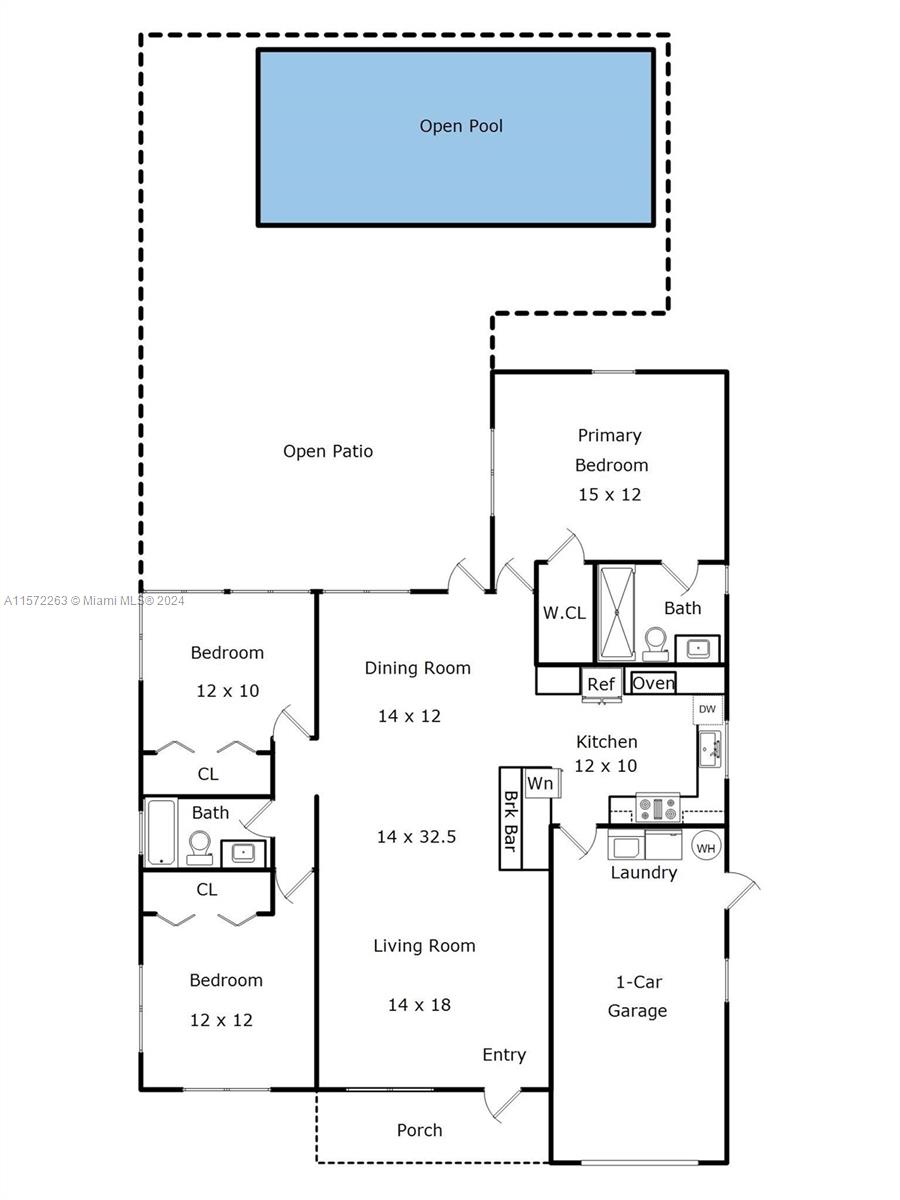
  • Жилая площадь: 1384 фут² / 129 м²
  • Цена за фут/метр: $1,048 / $11,277
  • Комнаты:3
  • Полных ванн:2
  • Налоги:$13,855
  • Год строительства:1956
  • Дата публикации:May 25, 2024
  • Дата продажи: June 17, 2024
  • Дней на рынке:22

Описание


Welcome to this storybook home on picturesque Majorca Avenue, down the street from famed Granada golf course. The curb appeal with the brick paved driveway and inviting front porch catch your eye right away. Inside, the beautiful hardwood floors throughout anchor the spaces. Spacious kitchen with sleek counters and plenty of cabinets for storage is ready for family cook-offs. Three bedrooms and two updated bathrooms, with plenty of natural light flooding in. Tropical, private, and quite splendid backyard oasis awaits. Sun-sail provides shade, pool heater blanket for off-season swimming, and sun-self in pool with umbrella provide total comfort. Rounded off by impact doors and windows and a 1 car garage. Truly, a Very Special Home

Особенности


  • Полы:Tile, Wood
  • Интерьер:BedroomonMainLevel, ClosetCabinetry, FrenchDoorsAtriumDoors, FirstFloorEntry, SplitBedrooms
  • Экстерьер:Fence, SecurityHighImpactDoors, Lighting, StormSecurityShutters

Расположение


Запросить информацию


Людмила Богатова
Людмила Богатова
Брокер по недвижимости