Coconut Grove Sec 1 Coral 4 bedroom Single Family House For Sale
330 Alesio Ave, Coral Gables, FL 33134

$1,575,000
Продано
Людмила Богатова
Людмила Богатова
Брокер по недвижимости

Детали


  • МЛС номер:A11551260
  • Виртуальный тур: Да
  • Цена предложения: $1,775,000
  • Цена продажи: $1,575,000
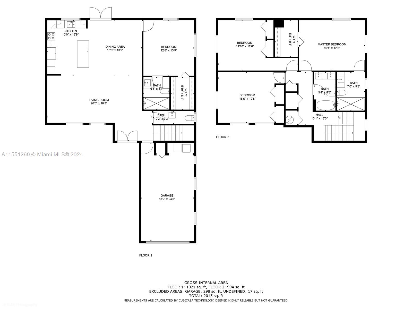
  • Жилая площадь: 2268 фут² / 211 м²
  • Цена за фут/метр: $694 / $7,475
  • Комнаты:4
  • Полных ванн:3
  • Неполных ванн:1
  • Налоги:$18,439
  • Год строительства:1978
  • Дата публикации:March 15, 2024
  • Дата продажи: June 28, 2024
  • Дней на рынке:104

Описание


Centrally located in Coral Gables is the key to this home presenting a rare opportunity to experience the perfect blend of convenience and charm. Renovated two-story with 4 bed, 3.5 bath boasts sun-drenched social areas perfect for hosting gatherings. The modern kitchen features a spacious island and expansive counter overlooking the dining area. The convenience of a downstairs oversized bedroom w/ensuite bathroom adds flexibility, while upstairs, the primary suite plus two additional bdrms await, there's plenty of space for family and guests. Enjoy ample closet storage throughout and a finished, climate-controlled garage ideal for a gym. Embrace the Coral Gables lifestyle with easy access to downtown Gables, renowned restaurants, upscale shopping destinations like Merrick Park and Miracle

Особенности


  • Полы:Other
  • Интерьер:ClosetCabinetry, EatinKitchen, FirstFloorEntry, KitchenIsland, LivingDiningRoom, MainLevelPrimary, UpperLevelPrimary
  • Экстерьер:Patio

Расположение


Запросить информацию


Людмила Богатова
Людмила Богатова
Брокер по недвижимости