Tropical Isle Homes Sub 1 5 bedroom Single Family House For Sale
455 Hampton Ln, Key Biscayne, FL 33149

$3,605,000
Продано
Людмила Богатова
Людмила Богатова
Брокер по недвижимости

Детали


  • МЛС номер:A11410042
  • Виртуальный тур: Да
  • Цена предложения: $3,800,000
  • Цена продажи: $3,605,000
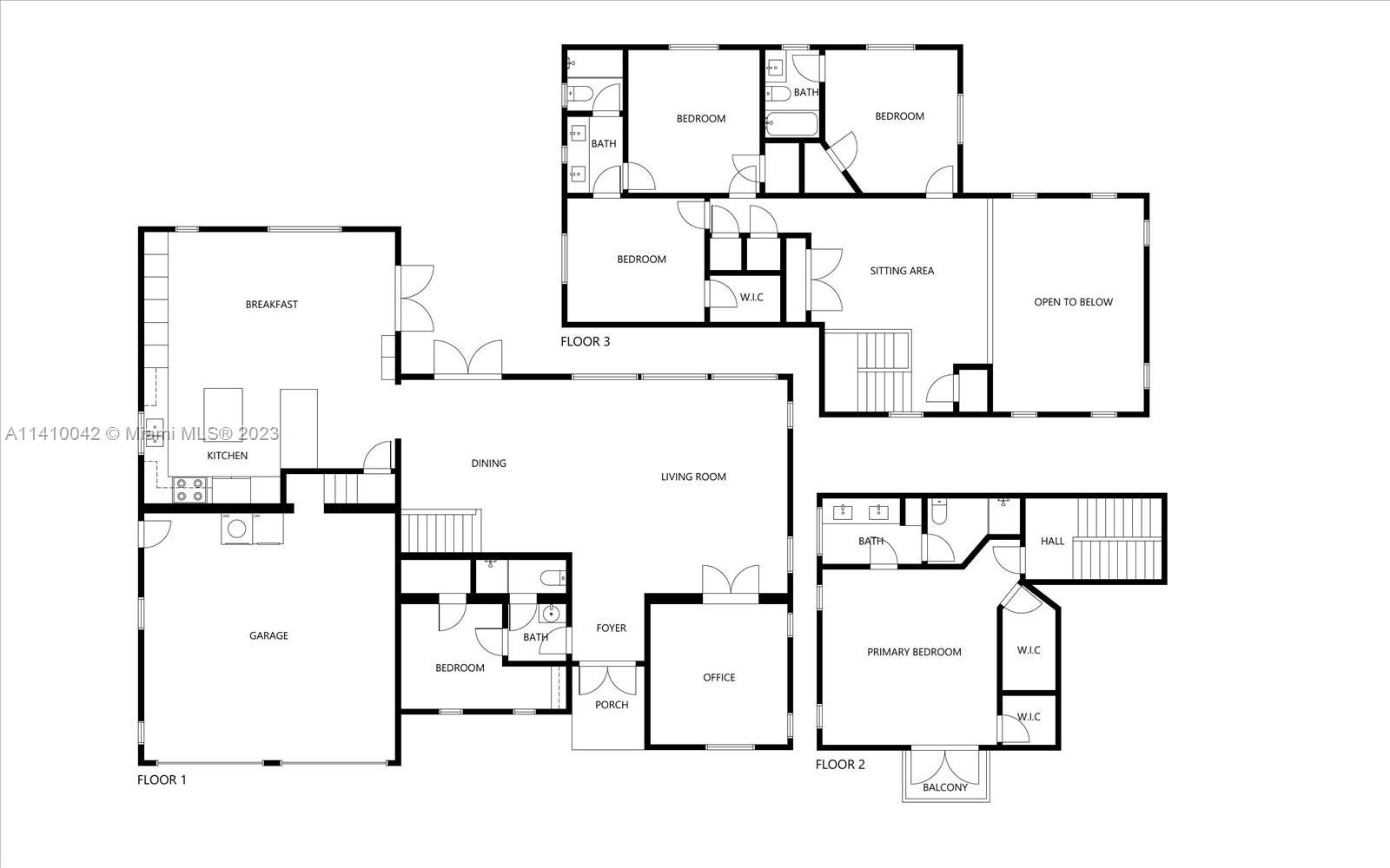
  • Жилая площадь: 3468 фут² / 322 м²
  • Цена за фут/метр: $1,040 / $11,189
  • Комнаты:5
  • Полных ванн:4
  • Налоги:$39,984
  • Год строительства:1995
  • Дата публикации:June 30, 2023
  • Дата продажи: October 23, 2023
  • Дней на рынке:114

Описание


Stunning new listing in Key Biscayne! Extraordinary opportunity to live in a luxurious home nestled amidst the natural beauty of Crandon Park and Bill Baggs Fl. St. Park. Offering you the ultimate coastal living experience. Prepare to be captivated by this gorgeous 3-level home, boasting 5 bedrooms, this residence offers ample space and privacy. Each bedroom comes complete with its own private bathroom. Additionally, there's a versatile den that can be used to fit your unique lifestyle needs. The updated spacious kitchen serves as the heart of the home. It provides a perfect gathering place for culinary enthusiasts. 2 car garage, provides additional storage space. Step out to a beautiful backyard oasis. Complete with a refreshing pool, offering a serene retreat.

Особенности


  • Полы:Marble, Wood
  • Интерьер:BedroomonMainLevel, DualSinks, FirstFloorEntry, UpperLevelPrimary, VaultedCeilings, WalkInClosets, Loft
  • Экстерьер:Awnings, Fence, SecurityHighImpactDoors, Lighting, Porch

Виртуальный тур


Расположение


Запросить информацию


Людмила Богатова
Людмила Богатова
Брокер по недвижимости