Utopia 2 bedroom Single Family House For Sale
4124 Ventura Ave, Coconut Grove, FL 33133

$1,460,500
Продано
Людмила Богатова
Людмила Богатова
Брокер по недвижимости

Детали


  • МЛС номер:A11387859
  • Виртуальный тур: Да
  • Цена предложения: $1,495,000
  • Цена продажи: $1,460,500
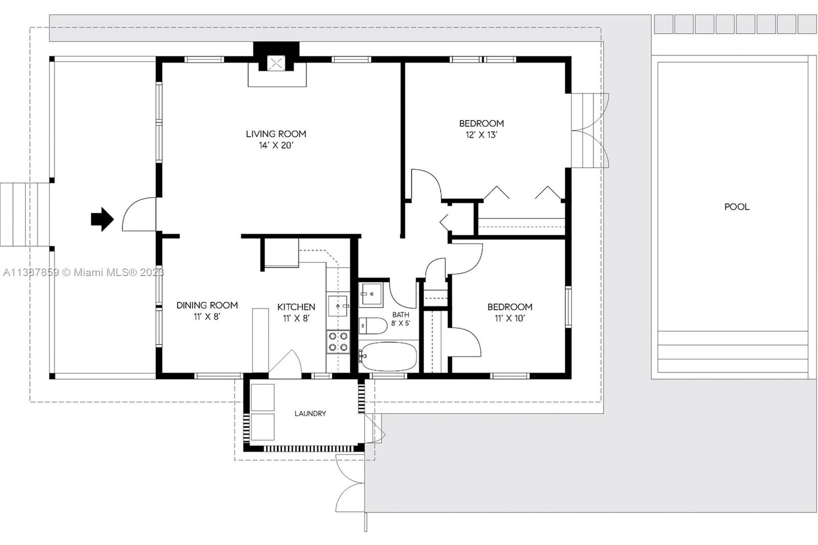
  • Жилая площадь: 945 фут² / 88 м²
  • Цена за фут/метр: $1,546 / $16,636
  • Комнаты:2
  • Полных ванн:1
  • Налоги:$9,717
  • Год строительства:1946
  • Дата публикации:June 14, 2023
  • Дата продажи: July 28, 2023
  • Дней на рынке:43

Описание


This classic Coconut Grove bungalow is perfectly located within the Utopia Homeowner’s Association and ready to welcome you home. It blends all the charm of a 1940’s cottage with modern comfort and conveniences, like impact windows/doors, renovated bathroom, great room, formal dining area, and saline swimming pool. Be delighted by a wide front porch, original interior doors and knobs, hard wood floors, and wood-burning fireplace. Impeccably maintained and improved with PVC plumbing, updated electrical, new drain field, and lush landscaping. Backyard features complete privacy, travertine pavers, storage shed, French doors to primary suite, and outdoor dining area adjacent to kitchen. Walk to nearby parks or the bustling center of Coconut Grove. Zoned for Coconut Grove Elementary.

Особенности


  • Полы:Tile, Wood
  • Интерьер:BreakfastBar, BedroomonMainLevel, DiningArea, SeparateFormalDiningRoom, FrenchDoorsAtriumDoors, FirstFloorEntry, Fireplace, MainLevelPrimary
  • Экстерьер:SecurityHighImpactDoors, Lighting, Porch, Shed

Виртуальный тур


Расположение


Запросить информацию


Людмила Богатова
Людмила Богатова
Брокер по недвижимости