Venetian Park III Condo 3 bedroom Townhouse For Sale
934 Ne 25th Ave, Unit 120, Hallandale Beach, FL 33009

$720,000
Продано
Людмила Богатова
Людмила Богатова
Брокер по недвижимости

Детали


  • МЛС номер:A11310897
  • Виртуальный тур: Да
  • Номер квартиры:120
  • Цена предложения: $745,000
  • Цена продажи: $720,000
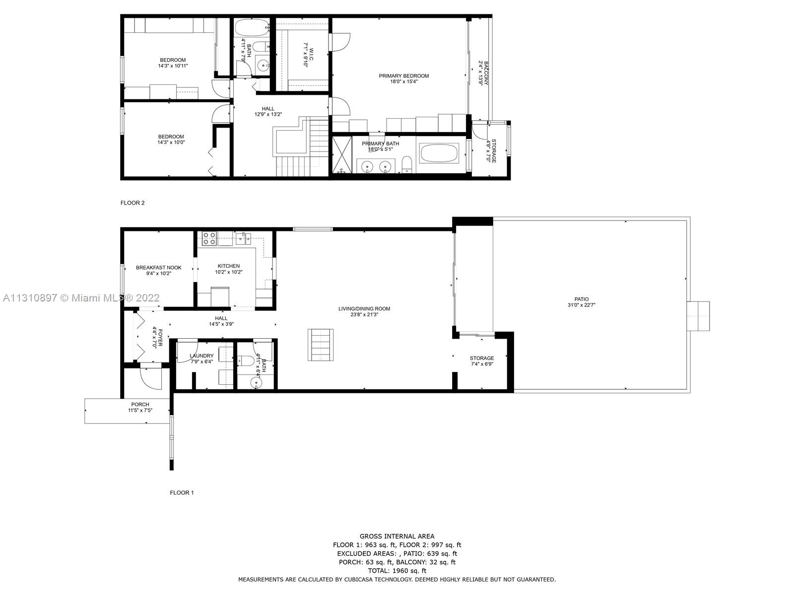
  • Жилая площадь: 2083 фут² / 194 м²
  • Цена за фут/метр: $346 / $3,721
  • Комнаты:3
  • Полных ванн:2
  • Неполных ванн:1
  • Обслуживание:$777
  • Налоги:$3,411
  • Год строительства:1979
  • На канале:Да
  • Дата публикации:December 3, 2022
  • Дата продажи: February 6, 2023
  • Дней на рынке:64

Описание


Water front 3/2/1 townhouse with OCEAN access. Luminous home with East exposure, remodeled kitchen with porcelain white flooring throughout the entire lower level. The townhouse is a corner unit w a private storage and 2 assigned parkings. Laundry room with new washer and dryer ,new water heater. Amenities : pool, club house tennis court. Shopping mall near by, individual boutiques and malls, conveniently located throughout the city. From fast food to vegetarian, there is something for everyone at Hallandale Beach Restaurants and Eateries. The near by Diplomat Center, Fashion Row, and Gulfstream Village offer dining and shopping opportunities.

Особенности


  • Полы:Carpet, CeramicTile
  • Интерьер:BreakfastArea, EatinKitchen, FirstFloorEntry
  • Экстерьер:Deck, Porch
  • На канале:BayFront, CanalFront

Расположение


Запросить информацию


Людмила Богатова
Людмила Богатова
Брокер по недвижимости