Coral Gab Sec D Rev Pl 3 bedroom Single Family House For Sale
2500 San Domingo St, Coral Gables, FL 33134

$2,600,000
Продано
Людмила Богатова
Людмила Богатова
Брокер по недвижимости

Детали


  • МЛС номер:A11283828
  • Виртуальный тур: Да
  • Цена предложения: $2,799,999
  • Цена продажи: $2,600,000
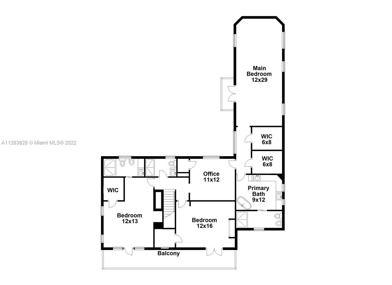
  • Жилая площадь: 3700 фут² / 344 м²
  • Цена за фут/метр: $703 / $7,564
  • Комнаты:3
  • Полных ванн:4
  • Налоги:$9,334
  • Год строительства:1940
  • Дата публикации:October 10, 2022
  • Дата продажи: February 24, 2023
  • Дней на рынке:136

Описание


Welcome to "2 Oaks" in Coral Gables.This gorgeous Colonial style home was redesigned & revamped by renowned architects Portuondo Perotti in the early 90's. Situated between 2 gorgeous mature oak trees, the curb appeal this home evokes is exceptional.This home sits on a double lot & is in one of best locations in Coral Gables. Providing 3 bedrooms + den (potential as a 4 bed) & 4 full bathrooms, original wood burning fireplace, indoor laundry room, immaculate original wood floors, updated white marble kitchen, sunroom w/bar, & all the downstairs areas lit w/natural sunlight overlooking the lusciously landscaped picturesque backyard surrounding the pool. A superb family home & designed for entertaining. Easy walking distance to Biltmore Hotel, Church of Little Flower & Downtown Coral Gables.

Особенности


  • Полы:Wood
  • Интерьер:BuiltinFeatures, EntranceFoyer, FrenchDoorsAtriumDoors, FirstFloorEntry, UpperLevelPrimary, Bar
  • Экстерьер:Awnings, Balcony, Porch

Расположение


Запросить информацию


Людмила Богатова
Людмила Богатова
Брокер по недвижимости