Oceanside Sec Isle Of Nor 4 bedroom Single Family House For Sale
1461 Marseille Dr, Miami Beach, FL 33141

$1,765,000
Продано
Людмила Богатова
Людмила Богатова
Брокер по недвижимости

Детали


  • МЛС номер:A11278804
  • Виртуальный тур: Да
  • Цена предложения: $1,900,000
  • Цена продажи: $1,765,000
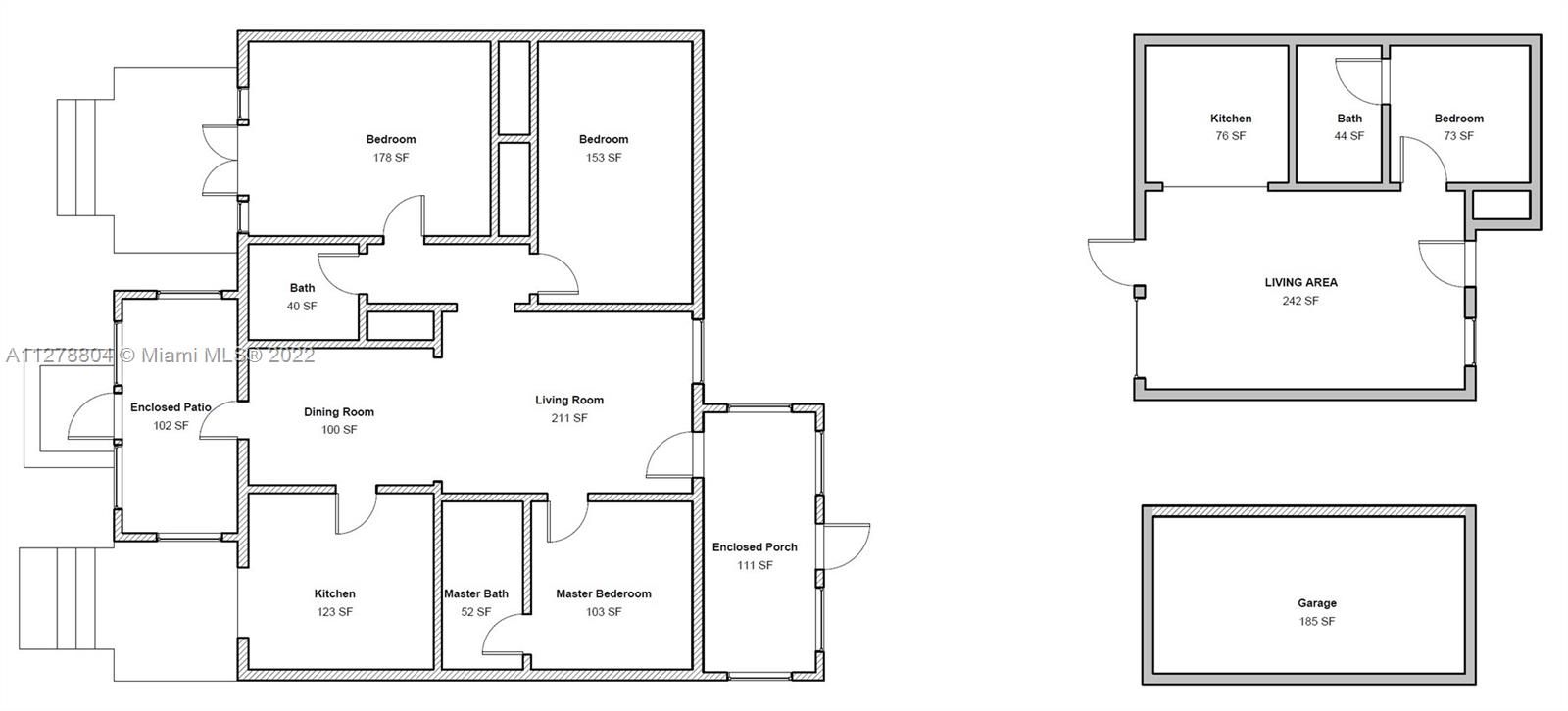
  • Жилая площадь: 1630 фут² / 151 м²
  • Цена за фут/метр: $1,083 / $11,655
  • Комнаты:4
  • Полных ванн:3
  • Налоги:$14,245
  • Год строительства:1940
  • На канале:Да
  • Дата публикации:October 4, 2022
  • Дата продажи: March 29, 2023
  • Дней на рынке:175

Описание


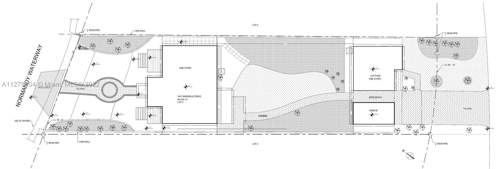
Search no more. Say hello to your new tropical oasis with this hidden gem, complete with a guest cottage to host all of your guests! Perfectly situated in Normandy Isles, this Spanish-style home is your perfect new home! Waterfront views, with a wooden dock with the perfect space for a 25ft boat. Complete privacy with this home situated in the middle of the lot with a garden in front and back. Current owners have stunning architectural renderings and plans for a modern Miami masterpiece!

Особенности


  • Полы:Other, Tile
  • Интерьер:BedroomonMainLevel, FirstFloorEntry, MainLevelPrimary
  • Экстерьер:EnclosedPorch, Patio, RoomForPool
  • На канале:CanalFront, OceanAccess

Расположение


Запросить информацию


Людмила Богатова
Людмила Богатова
Брокер по недвижимости