Lincoln Park Fifth Add Am 3 bedroom Single Family House For Sale
932 Nw 16th Ter, Fort Lauderdale, FL 33311

$335,400
Продано
Людмила Богатова
Людмила Богатова
Брокер по недвижимости

Детали


  • МЛС номер:A11265191
  • Цена предложения: $335,400
  • Цена продажи: $335,400
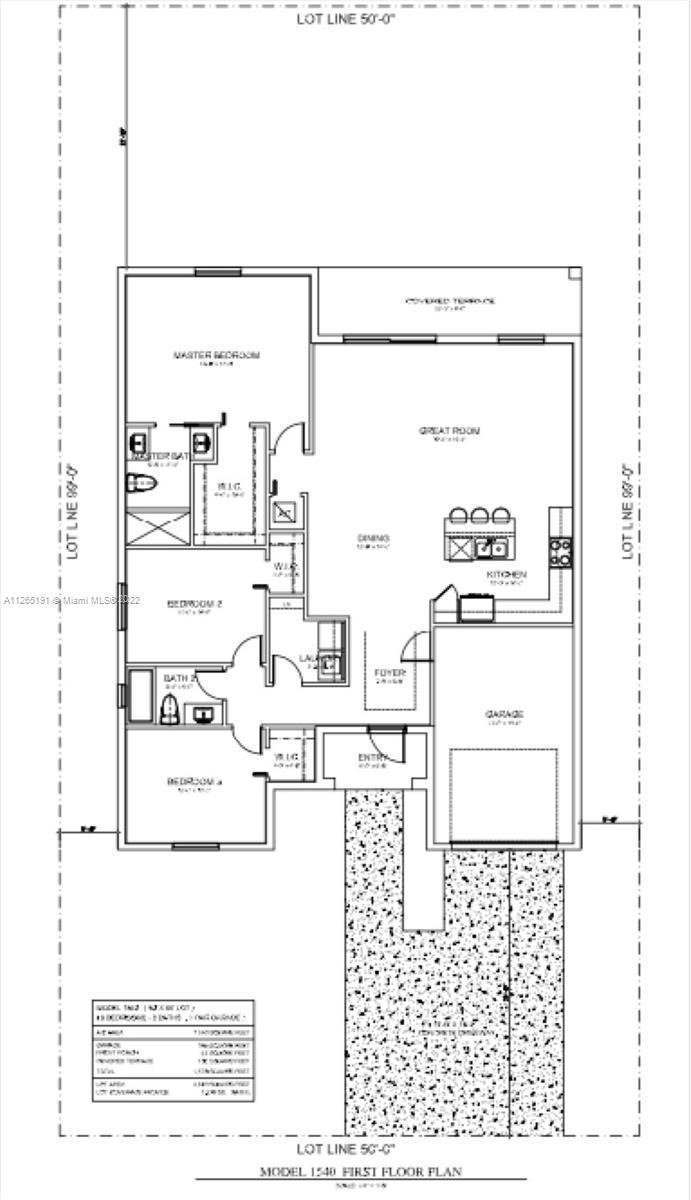
  • Жилая площадь: 1540 фут² / 143 м²
  • Цена за фут/метр: $218 / $2,344
  • Комнаты:3
  • Полных ванн:2
  • Год строительства:2022
  • Дата публикации:September 15, 2022
  • Дата продажи: October 24, 2023
  • Дней на рынке:403

Описание


Great Time To Be A Homeowner! This Beautiful Home Features Three Bedrooms, Two Baths & 1 Car Garage. Built With All The Upgrades You Need To Make It Your Dream Home. Inside Your Home, You Will Find; Impact Windows & Doors With Decorative Blinds On All Windows, A Modern Kitchen With Stainless Steel Appliances And White Quartz Countertops, Modern Bathrooms With Ceramic Tile Showers And Modern Plumbing Fixtures, Polished Concrete Floors Thought The House, Full-Size Washer, And Dryer, He Water Heater, Recess Lighting In The Living Area And Led Light Fixtures In Bedrooms. Garage Door. Wifi Compatible Home. * CRA Homes Are Not For Investors. Homeowners only!

Особенности


  • Полы:Concrete
  • Интерьер:BedroomonMainLevel, ClosetCabinetry, FamilyDiningRoom, FirstFloorEntry, Attic
  • Экстерьер:SecurityHighImpactDoors

Расположение


Запросить информацию


Людмила Богатова
Людмила Богатова
Брокер по недвижимости