East Haven 4 bedroom Single Family House For Sale
714 Ne 7th St, Pompano Beach, FL 33060

$715,000
Продано
Людмила Богатова
Людмила Богатова
Брокер по недвижимости

Детали


  • МЛС номер:A11237912
  • Виртуальный тур: Да
  • Цена предложения: $712,000
  • Цена продажи: $715,000
  • Жилая площадь: 2088 фут² / 194 м²
  • Цена за фут/метр: $342 / $3,686
  • Комнаты:4
  • Полных ванн:3
  • Налоги:$4,276
  • Год строительства:1965
  • Дата публикации:July 12, 2022
  • Дата продажи: August 31, 2022
  • Дней на рынке:49

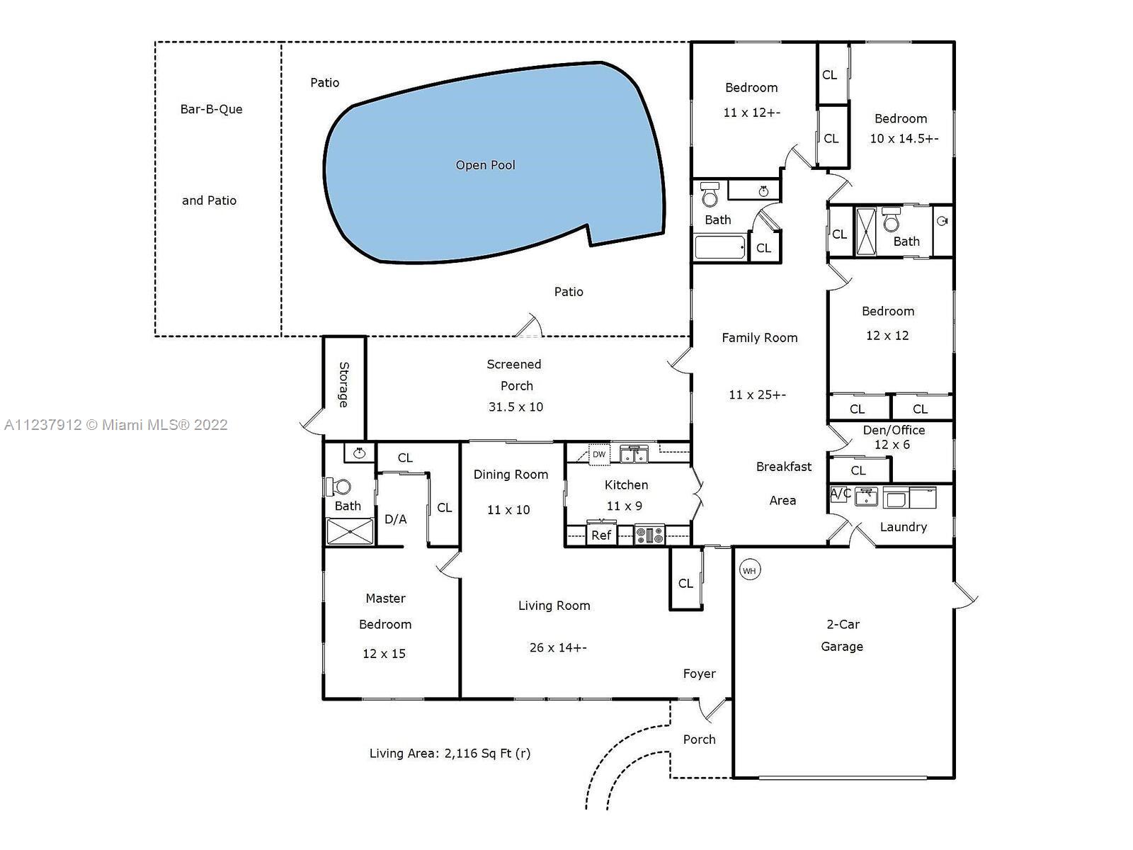
Описание


Imagine living close to wonderful restaurants & walking distance to the beach. Come live in this beautiful retreat & enjoy all that Florida has to offer....SUN, SEA & SANCTUARY. Walk outside to your backyard oasis & you will emerge yourself w/a home that is ready for entertaining w/outdoor kitchen, Jacuzzi, stunning pool & an incredibly ample backyard w/room for an RV & a boat. In addition it includes a screened porch area to enjoy your outdoor haven. The heart of the home, the kitchen, is updated & has SS appliances, granite countertop & a spacious living room & dinning room. Enjoy a split plan home w/2 car garage, 4 bedroom, 3 full bath that includes a jack & Jill so every room has access to it ´s own bathroom. Master has a totally remodeled en-suite. This home has it all! Won’t last!

Особенности


  • Полы:Tile
  • Интерьер:BedroomonMainLevel, BreakfastArea, DiningArea, SeparateFormalDiningRoom, FirstFloorEntry, MainLevelMaster, Pantry
  • Экстерьер:Patio

Запросить информацию


Людмила Богатова
Людмила Богатова
Брокер по недвижимости