Shane Estates 6 bedroom Single Family House For Sale
10720 Sw 72nd Ave, Pinecrest, FL 33156

$2,350,000
Продано
Людмила Богатова
Людмила Богатова
Брокер по недвижимости

Детали


  • МЛС номер:A11203011
  • Виртуальный тур: Да
  • Цена предложения: $2,395,000
  • Цена продажи: $2,350,000
  • Жилая площадь: 5077 фут² / 472 м²
  • Цена за фут/метр: $463 / $4,982
  • Комнаты:6
  • Полных ванн:5
  • Налоги:$19,283
  • Год строительства:1957
  • Дата публикации:May 12, 2022
  • Дата продажи: July 21, 2022
  • Дней на рынке:69

Описание


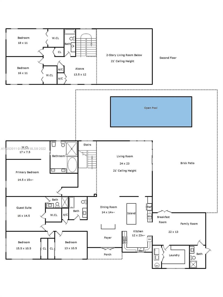
Stunningly remodeled in 2008, what a gorgeous six bedroom, two-story home this is! From the moment you step through the door, you sense the beautiful balance of elegance and space. The bright kitchen is anchored by a large island and bookended by a family room and dining room. A dramatic two-story living room, surrounded by panes of glass overlooks a lush, private pool and garden, an outdoors where all you can say is “wow.” The large primary suite includes a sitting area, spacious walk-in closet, and spa-like bath. This home has a tri-split floor plan…two bdrms upstairs, 4 bdrms downstairs split into two separate wings. 4,587 square feet under air, completely protected by impact glass. The sprawling brick driveway with double electric gates allows for ample parking. A Very Special Home.

Особенности


  • Полы:Clay, Wood
  • Интерьер:BuiltinFeatures, BedroomonMainLevel, ClosetCabinetry, EatinKitchen, FirstFloorEntry, KitchenDiningCombo, MainLevelMaster, SittingAreainMaster, VaultedCeilings, WalkInClosets
  • Экстерьер:Fence, SecurityHighImpactDoors, Lighting, Patio, Shed

Расположение


Запросить информацию


Людмила Богатова
Людмила Богатова
Брокер по недвижимости