Sector 6 East 5 bedroom Single Family House For Sale
1338 Camellia Ln, Weston, FL 33326

$1,050,000
Продано
Людмила Богатова
Людмила Богатова
Брокер по недвижимости

Детали


  • МЛС номер:A11188382
  • Виртуальный тур: Да
  • Цена предложения: $995,000
  • Цена продажи: $1,050,000
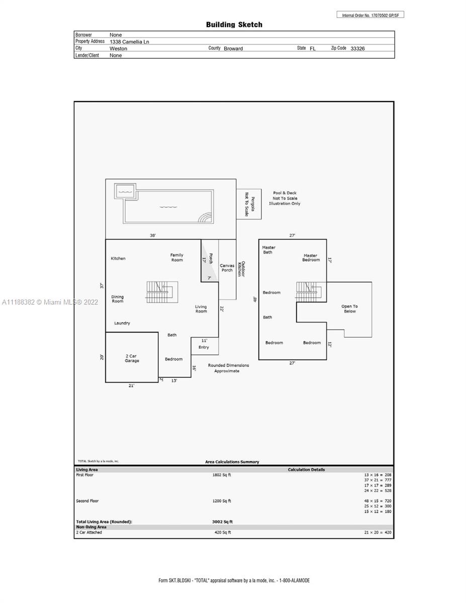
  • Жилая площадь: 2492 фут² / 232 м²
  • Цена за фут/метр: $421 / $4,535
  • Комнаты:5
  • Полных ванн:3
  • Обслуживание:$425
  • Налоги:$10,765
  • Год строительства:1995
  • Дата публикации:April 14, 2022
  • Дата продажи: June 14, 2022
  • Дней на рынке:60

Описание


3,002 sq ft Liv Area of pure Luxury! Move-in-ready property w/ Resort-Style Saltwater Pool, fully fenced & privacy hedged. Located in the highly desired community of Camellia Islands. 5 Bedrooms plus 3 Full Baths, 2 Car Garage w/ Oversized Pool. BRAND NEW Roof (2022) & All New Gutters, Full Accordion Hurricane Shutters. Freshly painted Exterior & Trim. BRAND NEW Landscaping front & back. Freshly painted interior. Updated Kitchen w/ White cabinets, granite countertops with new dishwasher, & microwave. featuring a 256-bottle Wine Chiller. Full Bed/Bath first floor. Garage w/ AC, ceiling storage w/ new floor and paint. Brand New A/C's, NEW Pool Pump, upgraded Sprinkler system. Pergola with SmartTV. Barn Doors, LED lighting, New light fixtures. A+ schools! Corner lot in Cul de Sac

Особенности


  • Полы:Tile, Wood
  • Интерьер:BreakfastBar, BuiltinFeatures, BedroomonMainLevel, ClosetCabinetry, DiningArea, SeparateFormalDiningRoom, FrenchDoorsAtriumDoors, FirstFloorEntry, Pantry, StackedBedrooms, UpperLevelMaster, VaultedCeilings, WalkInClosets
  • Экстерьер:Barbecue, Fence, Lighting, OutdoorGrill, Patio

Расположение


Запросить информацию


Людмила Богатова
Людмила Богатова
Брокер по недвижимости