Emerald Courts Opal Cre 2 bedroom Townhouse For Sale
16013 W Emerald Cove Rd, Weston, FL 33331

$420,000
Продано
Людмила Богатова
Людмила Богатова
Брокер по недвижимости

Детали


  • МЛС номер:A11123674
  • Виртуальный тур: Да
  • Цена предложения: $399,999
  • Цена продажи: $420,000
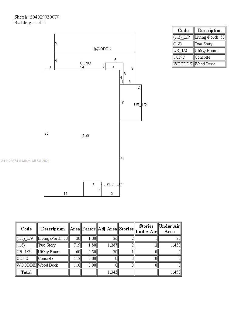
  • Жилая площадь: 1450 фут² / 135 м²
  • Цена за фут/метр: $290 / $3,118
  • Комнаты:2
  • Полных ванн:2
  • Неполных ванн:1
  • Обслуживание:$255
  • Налоги:$4,735
  • Год строительства:1997
  • Дата публикации:November 12, 2021
  • Дата продажи: December 9, 2021
  • Дней на рынке:26

Описание


24 HOUR NOTICE, TENANT OCCUPIED MONTH TO MONTH. Click on ShowingTime for showings ALL DAYS ONLY from 12:00 Am to 5:30 pm. AS-IS with the right to inspect. Breath-taking 2 Story Townhouse at the prestigious gated Community Emerald Court Weston. 2Bedrooms / 2 Full Baths, Half bath first-floor open floor plan, upgraded kitchen. Each bedroom w/ full bath upstairs. laminated floors. Realtors Please check the attachments. SHOWINGS START MONDAY NOVEMBER 15 2021. WE NEVER SETUP "showingGLY" DONT ASK FOR SHOWING THROUGH THIS APP Only showing time

Особенности


  • Полы:Other
  • Интерьер:FirstFloorEntry, MainLivingAreaEntryLevel, UpperLevelMaster
  • Экстерьер:

Расположение


Запросить информацию


Людмила Богатова
Людмила Богатова
Брокер по недвижимости