Silver Lakes Ph III Repla 4 bedroom Single Family House For Sale
3516 Sw 174th Dr, Miramar, FL 33029

$662,000
Продано
Людмила Богатова
Людмила Богатова
Брокер по недвижимости

Детали


  • МЛС номер:A11092752
  • Виртуальный тур: Да
  • Цена предложения: $675,000
  • Цена продажи: $662,000
  • Жилая площадь: 3417 фут² / 317 м²
  • Цена за фут/метр: $194 / $2,085
  • Комнаты:4
  • Полных ванн:3
  • Обслуживание:$648
  • Налоги:$6,565
  • Год строительства:1998
  • Дата публикации:September 9, 2021
  • Дата продажи: November 17, 2021
  • Дней на рынке:68

Описание


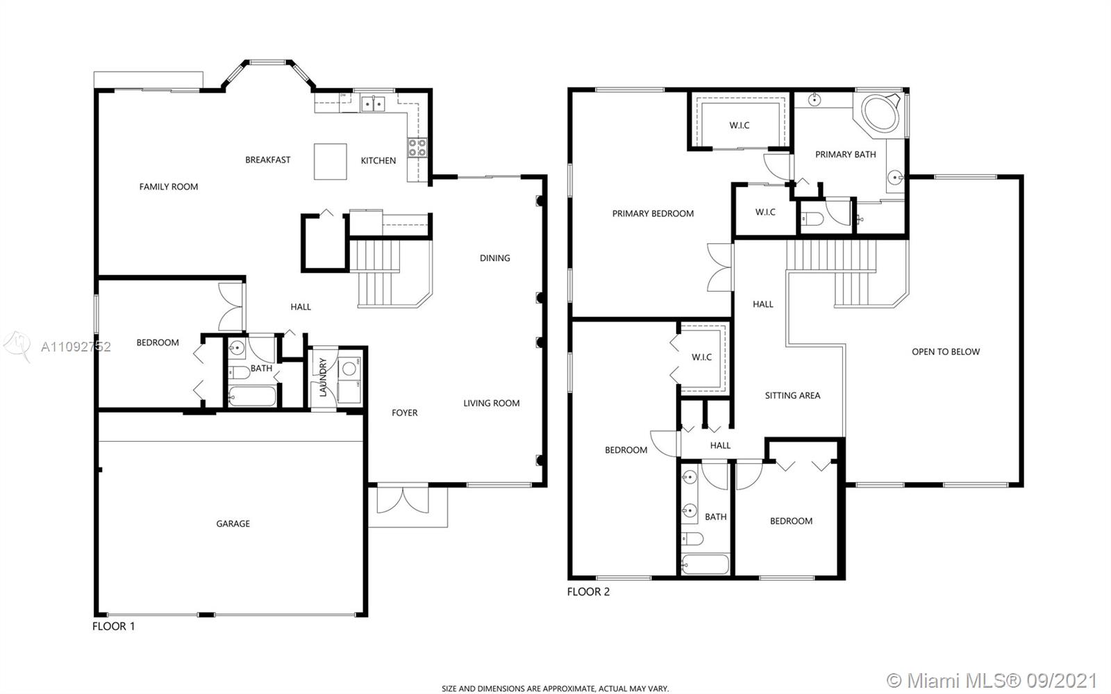
Beautiful home in the gated community of Pelican Isles. This very well-kept property features bountiful fruit trees in the backyard with plenty of room for a pool, new wood-like floors, custom drapes, with big spacious rooms and closets. One of the rooms could easily be converted into a 5th bedroom. This home is centrally located to highways, shops, and restaurants.

Особенности


  • Полы:Other, Tile
  • Интерьер:BedroomonMainLevel, BreakfastArea, FirstFloorEntry, LivingDiningRoom, CustomMirrors, Pantry, SittingAreainMaster, UpperLevelMaster, WalkInClosets, Loft
  • Экстерьер:Fence, FruitTrees, RoomForPool, StormSecurityShutters

Расположение


Запросить информацию


Людмила Богатова
Людмила Богатова
Брокер по недвижимости