Hollywood Park 3 bedroom Single Family House For Sale
2527 Arthur St, Hollywood, FL 33020

$370,000
Продано
Людмила Богатова
Людмила Богатова
Брокер по недвижимости

Детали


  • МЛС номер:A11065796
  • Виртуальный тур: Да
  • Цена предложения: $370,000
  • Цена продажи: $370,000
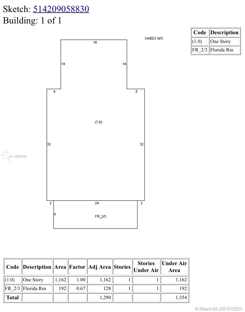
  • Жилая площадь: 2324 фут² / 216 м²
  • Цена за фут/метр: $159 / $1,714
  • Комнаты:3
  • Полных ванн:2
  • Налоги:$3,885
  • Год строительства:1946
  • Дата публикации:July 3, 2021
  • Дата продажи: August 6, 2021
  • Дней на рынке:33

Описание


No HOA. Stainless steel appliances. New roof and tankless water heater. Fresh paint. New Tile the living sq ft 1354

Особенности


  • Полы:Tile
  • Интерьер:BedroomonMainLevel, FirstFloorEntry
  • Экстерьер:

Расположение


Запросить информацию


Людмила Богатова
Людмила Богатова
Брокер по недвижимости