Canterbury At Lincoln Rd 2 bedroom Townhouse For Sale
1610 Euclid Ave, Unit C-101, Miami Beach, FL 33139

$570,000
Продано
Людмила Богатова
Людмила Богатова
Брокер по недвижимости

Детали


  • МЛС номер:A11008110
  • Виртуальный тур: Да
  • Номер квартиры:C-101
  • Цена предложения: $570,000
  • Цена продажи: $570,000
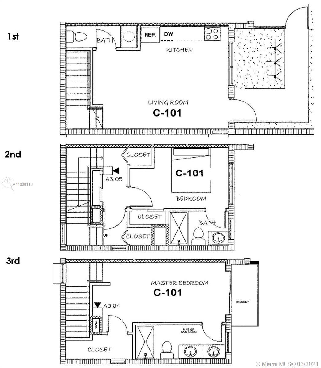
  • Жилая площадь: 1014 фут² / 94 м²
  • Цена за фут/метр: $562 / $6,051
  • Комнаты:2
  • Полных ванн:2
  • Неполных ванн:1
  • Обслуживание:$619
  • Год строительства:2021
  • Дата публикации:March 5, 2021
  • Дата продажи: March 28, 2022
  • Дней на рынке:387

Описание


New construction 3 story luxury Townvilla, with 2 bedroom, 2.5 baths and only unit with large private first floor enclosed patio area. Located in the heart of Miami Beach steps from Lincoln Road and Beaches. State of the art finishes throughout with modern Kitchen, Samsung Wi-Fi-enabled Refrigerator & Appliances, Nest Thermostat, Keyless Entry Access. Porcelain wood-look tile throughout, upscale bathroom fixtures, central A/C with heater system, impact glass windows, instant energy-efficient water heater, pre-wired for cable and data. Delivery summer 2021. Part of a fabulous 22-unit new construction boutique project.

Особенности


  • Полы:CeramicTile
  • Интерьер:FirstFloorEntry, LivingDiningRoom, UpperLevelMaster, WalkInClosets
  • Экстерьер:Courtyard, Patio

Расположение


Запросить информацию


Людмила Богатова
Людмила Богатова
Брокер по недвижимости