Tamiami Place Plan No 3 2 bedroom Single Family House For Sale
820 Wallace St, Coral Gables, FL 33134

$485,000
Продано
Людмила Богатова
Людмила Богатова
Брокер по недвижимости

Детали


  • МЛС номер:A10838376
  • Виртуальный тур: Да
  • Цена предложения: $500,000
  • Цена продажи: $485,000
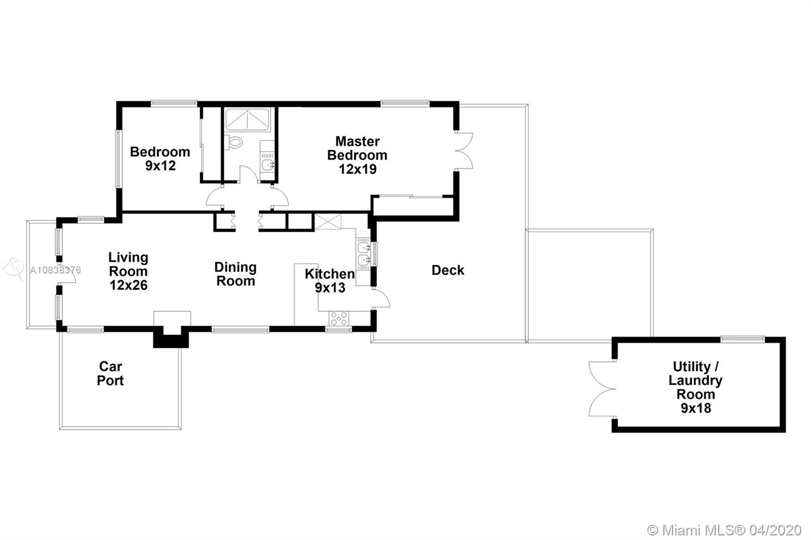
  • Жилая площадь: 1096 фут² / 102 м²
  • Цена за фут/метр: $443 / $4,763
  • Комнаты:2
  • Полных ванн:1
  • Налоги:$3,655
  • Год строительства:1923
  • Дата публикации:March 27, 2020
  • Дата продажи: July 17, 2020
  • Дней на рынке:111

Описание


A charming 1923 Coral Gables Old-Spanish style home completely updated with 2 bed, 1 bath, a converted detached garage situated on a tropical landscape will fascinate you upon arrival. With a long driveway and carport, this home is filled with lots of windows with attractive features such as an open-concept kitchen/living area, a working original fireplace & an ample freshly painted wood deck great for relaxing and entertaining. New features: A/C, PVC plumbing, tankless water heater and washer/dryer. The eat-in kitchen has solid wood cabinetry with granite countertops and s/s appliances, updated bathroom with shower, custom built-in closets, large porcelain interior floors. Spacious master bedroom with access to the deck. Enjoy living close to lots of what Coral Gables has to offer.

Особенности


  • Полы:Tile
  • Интерьер:BedroomonMainLevel, ClosetCabinetry, EatinKitchen, FamilyDiningRoom, FirstFloorEntry, Fireplace, MainLevelMaster
  • Экстерьер:Awnings, Deck, Fence, FruitTrees, Lighting, Porch, Patio

Расположение


Запросить информацию


Людмила Богатова
Людмила Богатова
Брокер по недвижимости