Coral Gables Sec E 3 bedroom Single Family House For Sale
1406 Sorolla Ave, Coral Gables, FL 33134

$770,000
Продано
Людмила Богатова
Людмила Богатова
Брокер по недвижимости

Детали


  • МЛС номер:A10727761
  • Виртуальный тур: Да
  • Цена предложения: $775,000
  • Цена продажи: $770,000
  • Жилая площадь: 1950 фут² / 181 м²
  • Цена за фут/метр: $395 / $4,250
  • Комнаты:3
  • Полных ванн:2
  • Неполных ванн:1
  • Налоги:$9,280
  • Год строительства:1962
  • Дата публикации:August 22, 2019
  • Дата продажи: September 30, 2019
  • Дней на рынке:38

Описание


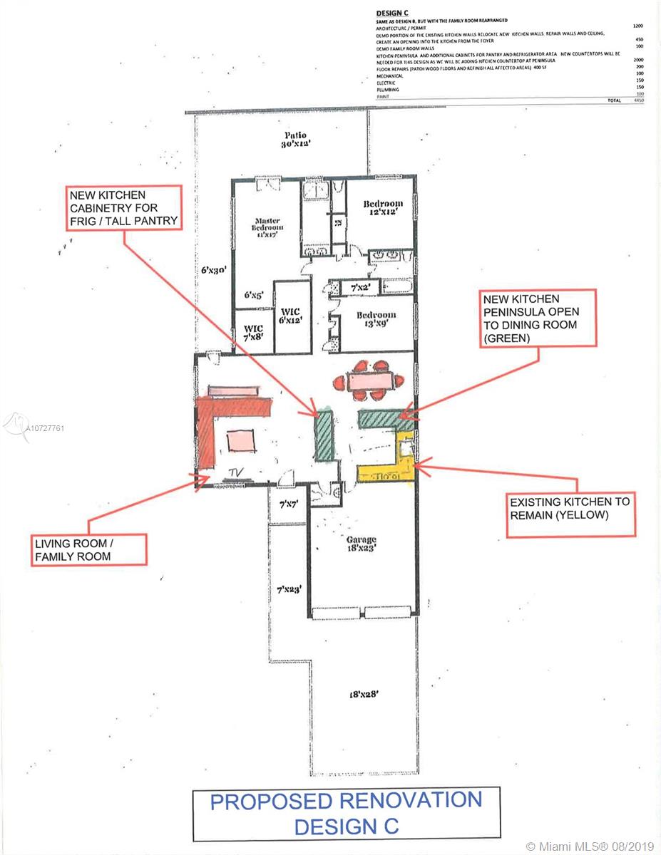
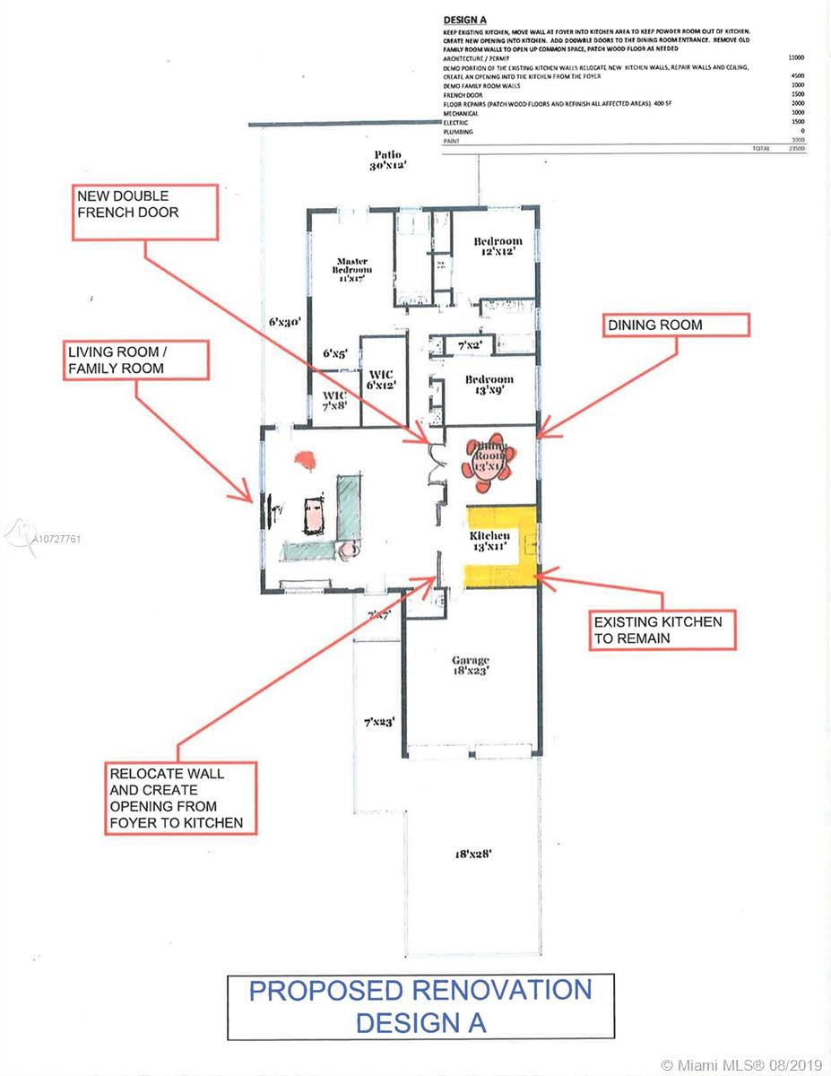
Like a new house!! Almost 2,200 adjusted square feet in this lovely updated home north of Alhambra and west of Granada in Coral Gables. Large 3-bedroom + den (which could be a fourth bedroom) 2-1/2 bath home that was totally renovated in 2010, with a new roof, new appliances, updated electric service, new a/c, plus impact windows/doors. Huge master suite with his and hers walk-in closets. Formal dining room. Large living room. Eat-in kitchen with stainless steel appliances, desk, and pantry. Beautiful hardwood floors. Plantation shutters. 2-car garage and a large backyard with room for a pool. 7,500 square ft lot. Easy to show. Very well priced and awaiting the perfect buyer who will appreciate all the space this home has to offer. Coral Gables Prep School District a plus!

Особенности


  • Полы:Tile, Wood
  • Интерьер:BedroomonMainLevel, ClosetCabinetry, DiningArea, SeparateFormalDiningRoom, EntranceFoyer, EatinKitchen, FrenchDoorsAtriumDoors, FirstFloorEntry, MainLevelMaster, SittingAreainMaster, WalkInClosets
  • Экстерьер:Fence, SecurityHighImpactDoors, Patio, RoomForPool

Расположение


Запросить информацию


Людмила Богатова
Людмила Богатова
Брокер по недвижимости