Hampton At Pinecrest 4 bedroom Townhouse For Sale
11847 Sw 81st Road, Pinecrest, FL 33156

$920,000
Продано
Людмила Богатова
Людмила Богатова
Брокер по недвижимости

Детали


  • МЛС номер:A10686686
  • Виртуальный тур: Да
  • Цена предложения: $950,000
  • Цена продажи: $920,000
  • Жилая площадь: 2697 фут² / 251 м²
  • Цена за фут/метр: $341 / $3,672
  • Комнаты:4
  • Полных ванн:4
  • Неполных ванн:1
  • Обслуживание:$358
  • Налоги:$15,694
  • Год строительства:2017
  • Разрешены животные:Да
  • Дата публикации:June 18, 2019
  • Дата продажи: March 16, 2020
  • Дней на рынке:271

Описание


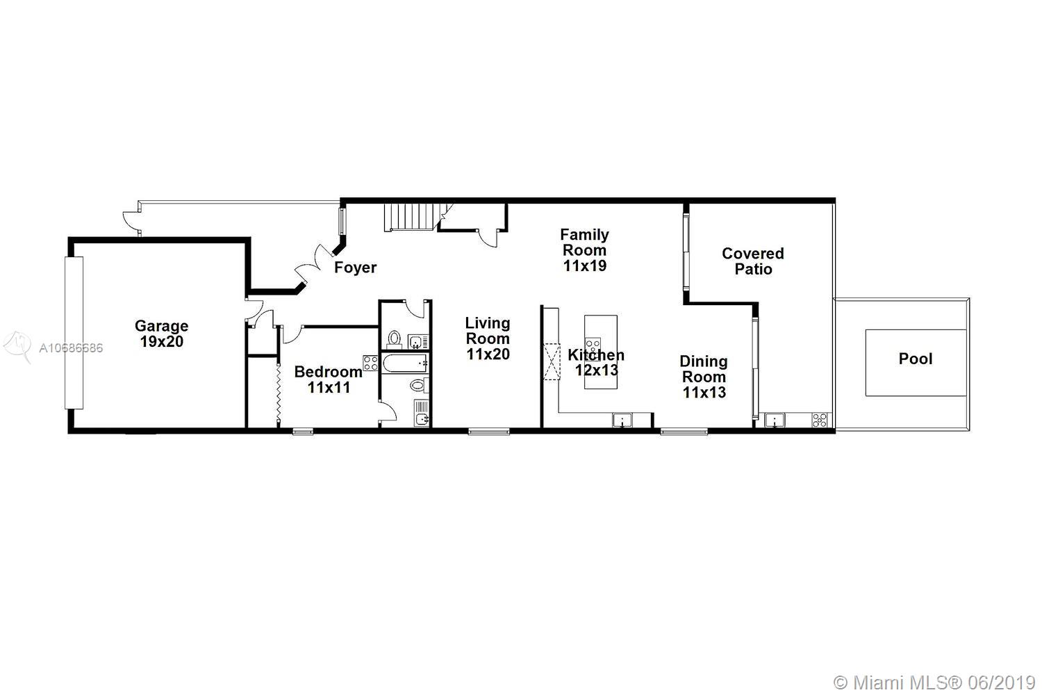
Spectacular villa with 4 en-suite bedrooms, pool and 2 car garage in the heart of Pinecrest. Completed in 2017, this unique smart home offers luxurious finishes & incredible attention to detail throughout. Featuring a spectacular open floor plan with double high ceilings in living areas, a stunning glass staircase and walls of glass that fill the spaces with natural light and showcases the pool with waterfall sheet and covered terrace with summer BBQ. Gourmet kitchen with eat-in island. Upstairs Enjoy Glamorous Master Suite w/ Spa Bath & Spacious Closet, 2 En-Suite Bedrooms, laundry room and den with balcony. All Impact Windows & Doors. Located in A+ school districts & close to renowned shopping & eateries!

Особенности


  • Полы:CeramicTile
  • Интерьер:BedroomonMainLevel, DiningArea, SeparateFormalDiningRoom, EatinKitchen, FrenchDoorsAtriumDoors, FirstFloorEntry, HighCeilings, SplitBedrooms, UpperLevelMaster, WalkInClosets
  • Экстерьер:Barbecue, Fence, SecurityHighImpactDoors, Porch, Patio

Расположение


Запросить информацию


Людмила Богатова
Людмила Богатова
Брокер по недвижимости