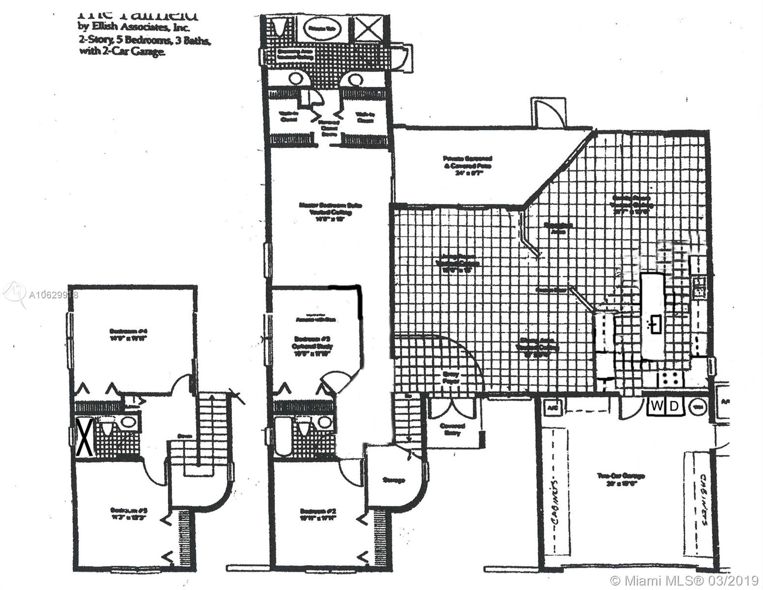
Country Isles Executive H 5 bedroom Single Family House For Sale
1604 Eastlake Way, Weston, FL 33326

$560,000
Продано
Людмила Богатова
Людмила Богатова
Брокер по недвижимости

Детали


  • МЛС номер:A10629918
  • Виртуальный тур: Да
  • Цена предложения: $589,900
  • Цена продажи: $560,000
  • Жилая площадь: 2695 фут² / 250 м²
  • Цена за фут/метр: $208 / $2,237
  • Комнаты:5
  • Полных ванн:3
  • Обслуживание:$268
  • Налоги:$5,942
  • Год строительства:1988
  • Разрешены животные:Да
  • Дата публикации:March 14, 2019
  • Дата продажи: April 25, 2019
  • Дней на рынке:41

Описание


CHIP AND JOANNA WOULD LOVE THIS HOUSE! ESPECIALLY THE CHEF'S KITCHEN. FRENCH DOORS LEAD TO THE CUSTOM CHRISTOPHER PEACOCK ENGLISH KITCHEN WITH FARMHOUSE SINK, 9' ISLAND WITH STUNNING TEAK COUNTERTOP, PREP SINK, 2 SUB ZERO FRIDGE DRAWERS, WARMING DRAWER, POT FILLER FAUCET AND CUSTOM DETAILED BACKSPLASH. WARM AND INVITING VIBES FLOW FROM THE MOMENT YOU ENTER THE COZY SITTING ROOM WITH SPECTACULAR POOL AND SPA VIEW. AN ULTRA SMART HOME WITH AMAZING TECH FEATURES. FIRST FLOOR MASTER, TRANQUIL SOAKING TUB RETREAT, 2 ADD'L BEDROOMS DOWNSTAIRS AND 2 TEEN/GUEST QUARTERS UPSTAIRS. ROOM FOR LOUNGING, HERB GARDEN BACKYARD WITH SPACE FOR CHILDREN TO PLAY. BEST 5/3 FLOOR PLAN IN WESTON! METICULOUSLY CARED FOR UPGRADED HOME WAITING FOR A NEW FAMILY TO MAKE MEMORIES.

Особенности


  • Полы:Carpet, Tile
  • Интерьер:BreakfastBar, BedroomonMainLevel, BreakfastArea, DiningArea, SeparateFormalDiningRoom, FirstFloorEntry, KitchenIsland, KitchenDiningCombo, MainLevelMaster
  • Экстерьер:Fence, Lighting, Patio, StormSecurityShutters

Расположение


Запросить информацию


Людмила Богатова
Людмила Богатова
Брокер по недвижимости