Paris Ests 4 bedroom Single Family House For Sale
7201 Sw 129th St, Pinecrest, FL 33156

$870,000
Продано
Людмила Богатова
Людмила Богатова
Брокер по недвижимости

Детали


  • МЛС номер:A10563858
  • Виртуальный тур: Да
  • Цена предложения: $850,000
  • Цена продажи: $870,000
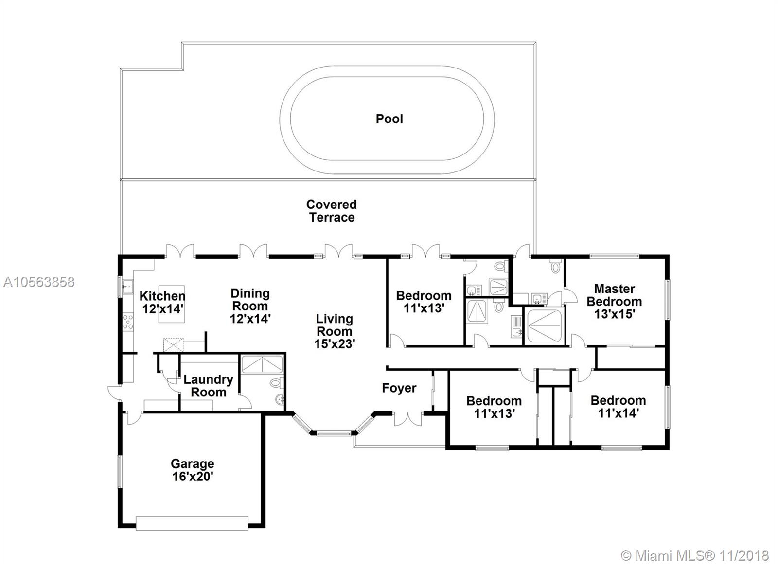
  • Жилая площадь: 1952 фут² / 181 м²
  • Цена за фут/метр: $446 / $4,797
  • Комнаты:4
  • Полных ванн:4
  • Налоги:$7,385
  • Год строительства:1961
  • Разрешены животные:Да
  • Дата публикации:October 31, 2018
  • Дата продажи: December 20, 2018
  • Дней на рынке:49

Описание


NEW PINECREST LISTING! COSMOPOLITAN CHIC! COMFORT WITHOUT COMPROMISE! SMART HOUSE TECHNOLOGY! STUNNING & COMPLETELY UPDATED 4B/4B HOME WITH TODAYS MOST DESIRED AND EXCITING AMENITIES! BEAUTIFUL TUMBLED MARBLE FLOORS AND PATIO! WALLS CAME DOWN TO CREATE AN OPEN FLOOR PLAN! NEW PVC PIPES! IMPACT GLASS WINDOWS & DOORS. BEAUTIFUL GOURMET KITCHEN WITH QUARTZ COUNTERS & HUGE ISLAND! BUTLER'S PANTRY! STUNNING NEW BATHS WITH FRAMELESS GLASS! LUSHLY LANDSCAPED & FENCED YARD FOR KIDS WITH A SPECIAL AND BEAUTIFUL AREA FOR YOUR DOG!! AMAZINGLY BEAUTIFUL NEW OPEN POOL & SPACIOUS PATIO FOR ENTERTAINING ON A SMALL INTIMATE OR GRAND SCALE! SELLER CAN CLOSE QUICKLY * YOU CAN BE MOVED IN FOR THE HOLIDAYS!

Особенности


  • Оборудование:AirPurifier
  • Полы:Marble, Wood
  • Интерьер:BuiltinFeatures, BedroomonMainLevel, ClosetCabinetry, EntranceFoyer, FrenchDoorsAtriumDoors, FirstFloorEntry, LivingDiningRoom, Pantry, AirFiltration
  • Экстерьер:Fence, SecurityHighImpactDoors, Lighting, Patio

Запросить информацию


Людмила Богатова
Людмила Богатова
Брокер по недвижимости