Country Isles Patio Homes 2 bedroom Single Family House For Sale
1961 Sacramento, Weston, FL 33326

$350,000
Продано
Людмила Богатова
Людмила Богатова
Брокер по недвижимости

Детали


  • МЛС номер:A10487770
  • Виртуальный тур: Да
  • Цена предложения: $359,900
  • Цена продажи: $350,000
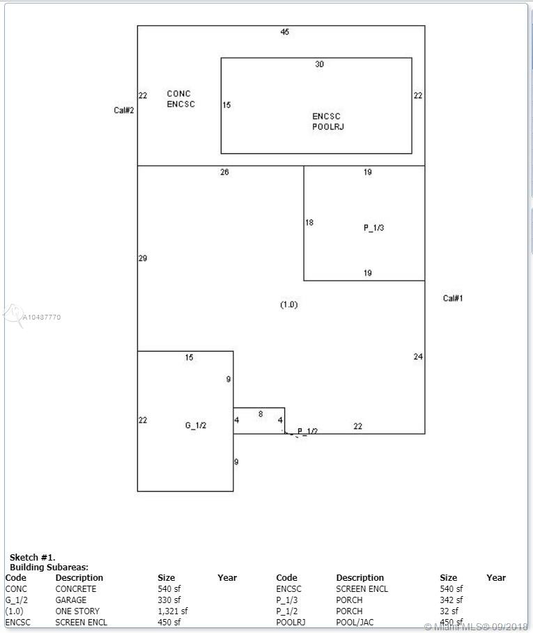
  • Жилая площадь: 1321 фут² / 123 м²
  • Цена за фут/метр: $265 / $2,852
  • Комнаты:2
  • Полных ванн:2
  • Обслуживание:$400
  • Налоги:$4,022
  • Год строительства:1987
  • Разрешены животные:Да
  • Дата публикации:June 16, 2018
  • Дата продажи: November 19, 2018
  • Дней на рынке:155

Описание


Beautiful & more than 10K below appraised valued! Pool home@Prestigious Country Isles in Weston-upgraded Kitchen-granite counter-tops, new cabinetry and SS-appliances. One-story home w/vaulted ceilings-Split bedroom floor-plan, Master w/walk in closet and bathw/TWO shower heads! 2nd bedroom has 2 closets and door to second bath-feels like another masterbedroom! Open layout w/access to oversize additional screened lanai 450 sqft under roof patio overlooking Pool and Spa, great for entertaining/relaxing! Laundry area in garage-Located in private cul-de-sac-Landscaping included in HOA-New 4-ton A/C + New Pool Heater+New Patio Screens + Renovated Deck in 2016. 2006 Concrete Clay Title Roof-Next to Weston Town Center, Shopping, access to I-75 giving you fast access to every where! A+ SCHOOLS

Особенности


  • Полы:Tile, Wood
  • Интерьер:BreakfastBar, FirstFloorEntry, LivingDiningRoom, MainLevelMaster, SplitBedrooms, VaultedCeilings, WalkInClosets
  • Экстерьер:EnclosedPorch, Fence

Запросить информацию


Людмила Богатова
Людмила Богатова
Брокер по недвижимости