Davie Farmettes 5 bedroom Single Family House For Sale
10970 Sw 30th Court, Davie, FL 33328

$895,000
Продано
Людмила Богатова
Людмила Богатова
Брокер по недвижимости

Детали


  • МЛС номер:A10409065
  • Виртуальный тур: Да
  • Цена предложения: $925,000
  • Цена продажи: $895,000
  • Жилая площадь: 4532 фут² / 421 м²
  • Цена за фут/метр: $197 / $2,126
  • Комнаты:5
  • Полных ванн:4
  • Налоги:$12,909
  • Год строительства:1972
  • Разрешены животные:Да
  • Дата публикации:February 2, 2018
  • Дата продажи: June 1, 2018
  • Дней на рынке:118

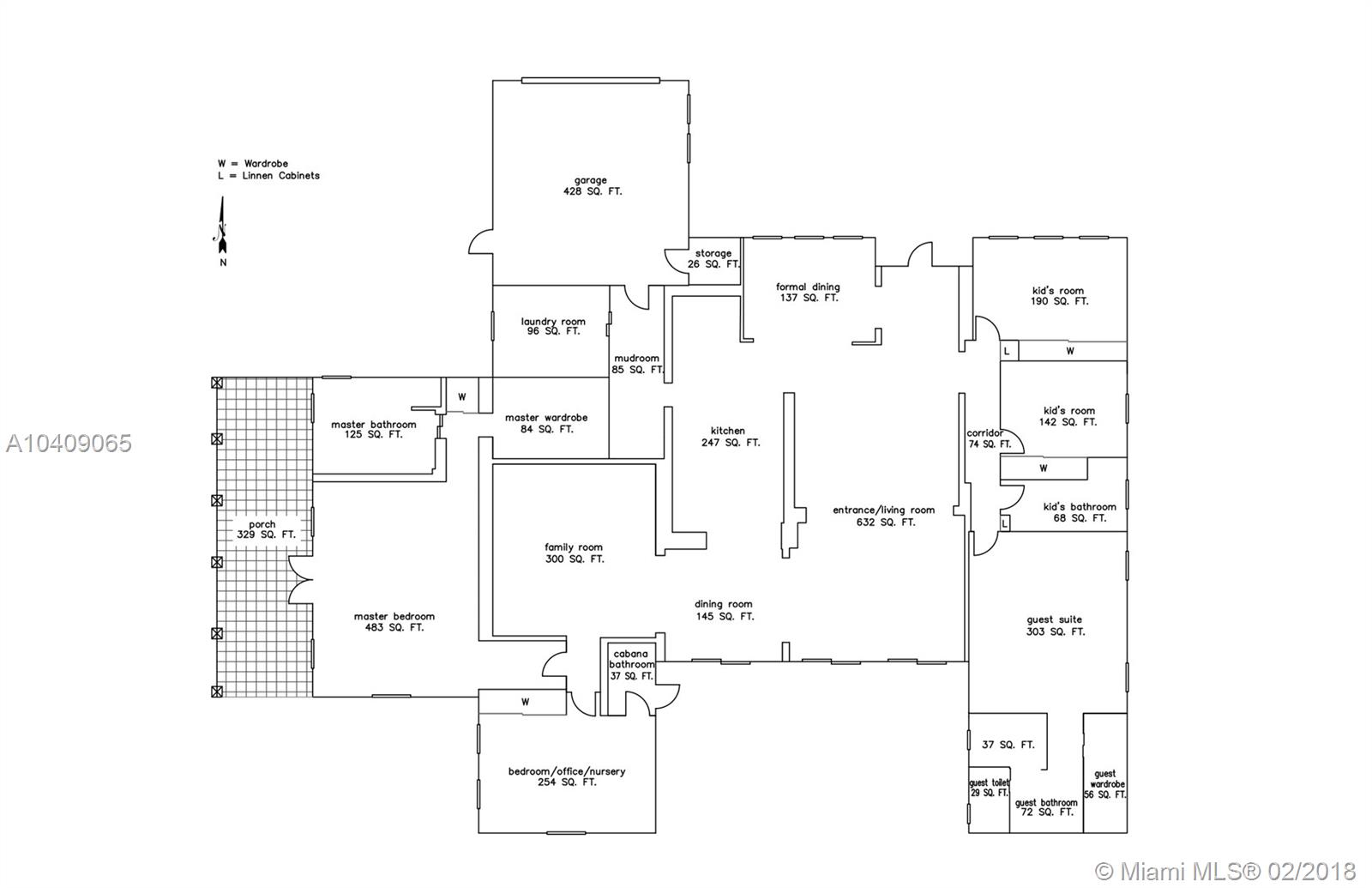
Описание


Beautifully renovated ranch style home on 1+ acre. Great view of the backyard thru bank of sliding glass doors. Private carp stocked pond with floating dock and airation fountain. Front and backyard has custom landscape designed by the l.a.f. group. Large formal living room, split bedroom floorplan, two master suites with stunning bathrooms. Main master suite w french doors to a covered veranda, great place for hammock. Expansive pavered deck and oversized pool for entertaining. Custom closets, impact windows and doors, new hurricane rated garage door, new stainless steel appliances, wine cooler, double oven, x-large laundry room, media room, cabana bath, new roof, electronic gates, long circular driveway, new bagless central vacuum, led lighting and usb modules. Horses Welcome!

Особенности


  • Полы:Tile, Wood
  • Интерьер:EntranceFoyer, MainLevelMaster, Other, Pantry, SittingAreainMaster, SplitBedrooms, WalkInClosets, CentralVacuum
  • Экстерьер:Deck, Fence, Lighting, Porch, Patio

Запросить информацию


Людмила Богатова
Людмила Богатова
Брокер по недвижимости