Normandy Beach 3 bedroom Single Family House For Sale
8875 Emerson Avenue, Surfside, FL 33154

$620,000
Продано
Людмила Богатова
Людмила Богатова
Брокер по недвижимости

Детали


  • МЛС номер:A10229881
  • Виртуальный тур: Да
  • Цена предложения: $685,000
  • Цена продажи: $620,000
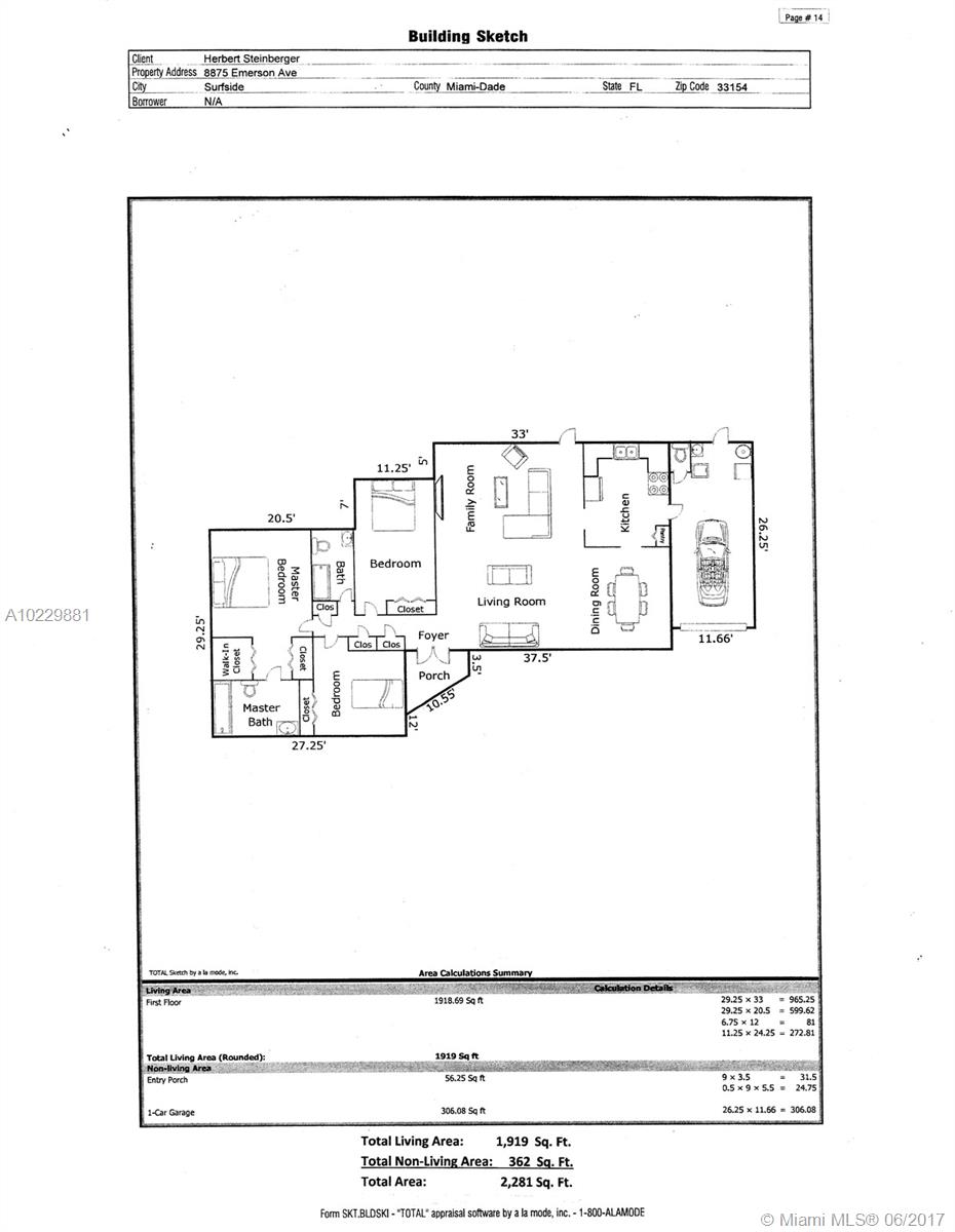
  • Жилая площадь: 1919 фут² / 178 м²
  • Цена за фут/метр: $323 / $3,478
  • Комнаты:3
  • Полных ванн:2
  • Неполных ванн:1
  • Налоги:$3,465
  • Год строительства:1955
  • Разрешены животные:Да
  • Дата публикации:February 22, 2017
  • Дата продажи: September 22, 2017
  • Дней на рынке:211

Описание


Just reduced!! This Surfside home is ideally located on a larger corner lot within walking distance to the beach!! This original condition property has a truly amazing floor plan which is perfect for that discriminating buyer who has the creative vision to see what this property can truly become with the right renovations!! Please see a copy of the floor plan, recently prepared by a certified residential property appraiser, which is located in the photos section. Don't miss this incredible opportunity!!

Особенности


  • Полы:Carpet, Terrazzo
  • Интерьер:BedroomonMainLevel, DiningArea, SeparateFormalDiningRoom, FirstFloorEntry, MainLevelMaster, StackedBedrooms
  • Экстерьер:

Запросить информацию


Людмила Богатова
Людмила Богатова
Брокер по недвижимости