Kenner Homes 6 bedroom Single Family House For Sale
9230 Sw 59th Pl, Pinecrest, FL 33156

$2,085,000
Продано
Людмила Богатова
Людмила Богатова
Брокер по недвижимости

Детали


  • МЛС номер:A10147124
  • Виртуальный тур: Да
  • Цена предложения: $2,299,500
  • Цена продажи: $2,085,000
  • Жилая площадь: 6392 фут² / 594 м²
  • Цена за фут/метр: $326 / $3,511
  • Комнаты:6
  • Полных ванн:6
  • Неполных ванн:1
  • Налоги:$27,517
  • Год строительства:1998
  • Дата публикации:September 14, 2016
  • Дата продажи: May 26, 2017
  • Дней на рынке:253

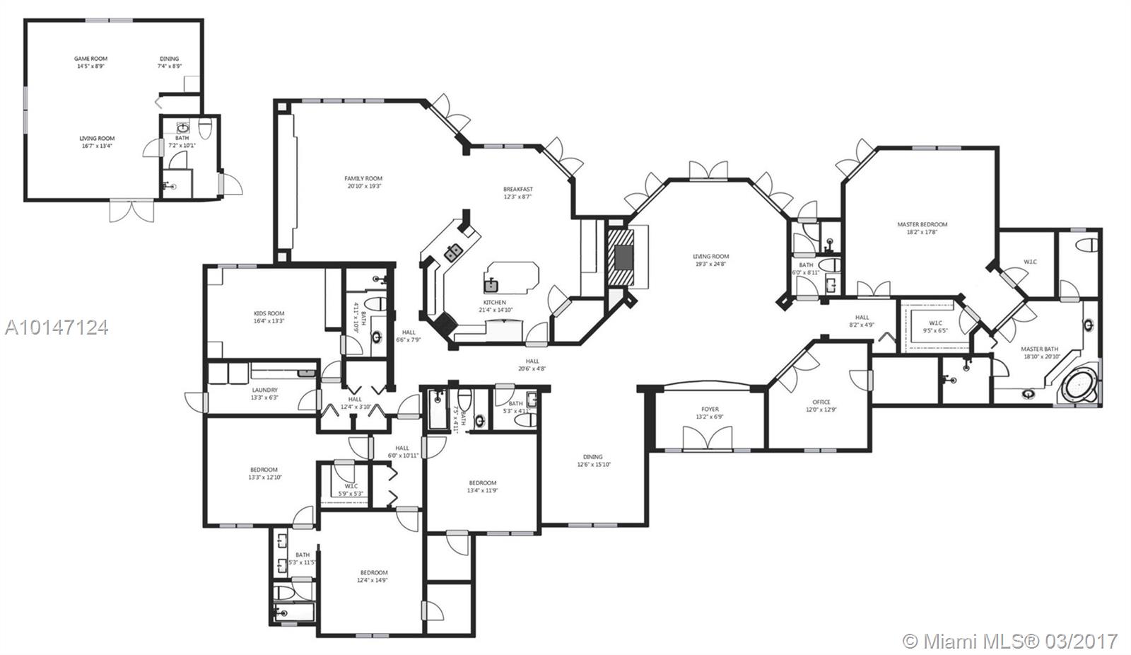
Описание


Incredible NE Pinecrest gated estate. Great value for the level of finish, & by the numbers. Split plan includes main house + detached guest quarters. 6 bedrooms total w/ a private master suite & adjacent office. Regal formal spaces incl living room (w/ fireplace) & dining room. Eat in kitchen w/ a pantry & menu desk. Highlight family rm with furniture grade built-ins & in-ceiling audio. Bball court, summer kitchen & a pool on this huge lot. All the features you expect at a price you wont. SQFT per tax

Особенности


  • Полы:Carpet, Other, Tile, Wood
  • Интерьер:BuiltinFeatures, BedroomonMainLevel, BreakfastArea, DiningArea, SeparateFormalDiningRoom, EatinKitchen, FrenchDoorsAtriumDoors, Fireplace, HighCeilings, KitchenIsland, MainLevelMaster, Pantry, WalkInClosets
  • Экстерьер:Barbecue, Fence, FruitTrees, Lighting, OutdoorGrill, StormSecurityShutters, Awnings

Запросить информацию


Людмила Богатова
Людмила Богатова
Брокер по недвижимости