801 Sma Residences Condo 2 bedroom Condo For Sale
801 S Miami Ave, Unit 4205, Miami, FL 33130

$995,000
Продажа
Людмила Богатова
Людмила Богатова
Брокер по недвижимости

Детали


  • МЛС номер:A11820977
  • Виртуальный тур: Да
  • Номер квартиры:4205
  • Цена предложения: $995,000
  • Комнаты:2
  • Полных ванн:2
  • Обслуживание:$1,871
  • Налоги:$14,878
  • Год строительства:2018
  • На канале:Да
  • Дата публикации:June 12, 2025
  • Дней на рынке:333

Описание


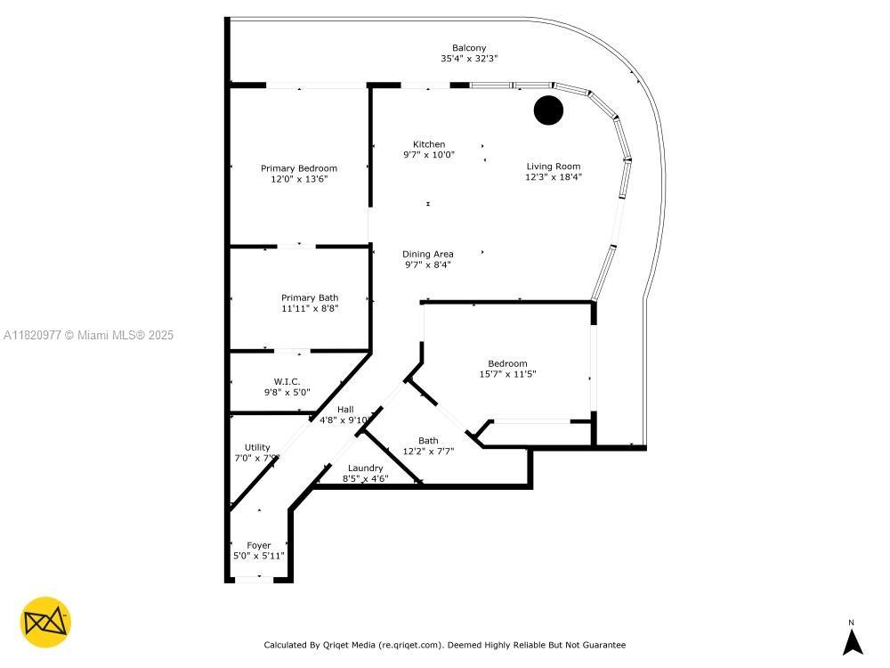
Wonderfully furnished & equipped 2 bed/2 bath unit in SLS Lux sold turn key! Biscayne bay & Miami skyline views await you. Private foyer elevator, 1 covered parking space. Designer furniture and furnishings. Upgraded unit finishes include: Italian Ciot green marble countertops & LED lighting in kitchen, white calacatta luxor marble vanity tops & Toto washlets in bathrms, Italkraft closet system in closets, automated window roller shades throughout. Bldg amenities include: SLS Hotel - 2 pools - Roof top private pool for residents only, Cabanas, bar & restaurants, Fitness Ctr & sauna, Spa,children's playground w/rock climbing, Billiard, Wine & cigar room, game room, putting green, tennis, 45th floor residents wine/cigar lounge. Brickell City Center w/entertainment & dining.Close to airport & M.Beach ** Unit cannot be shown** Tenant occupied till 1/19/2027 @ $6800/mo.** Unit Sold w/occupied tenant, lease fully enforced. Can be seen w/ executed contract & to conduct inspections.** See attached video and floor plan of unit**

Особенности


  • Полы:CeramicTile
  • Интерьер:BreakfastBar, BedroomOnMainLevel, ClosetCabinetry, EatInKitchen, LivingDiningRoom, SplitBedrooms, WalkInClosets, Elevator, Bar
  • Экстерьер:Balcony, SecurityHighImpactDoors
  • На канале:Bayfront

Расположение


Price History


Please sign in to view this information

Запросить информацию


Людмила Богатова
Людмила Богатова
Брокер по недвижимости