Plaza Of Americas Condo P 2 bedroom Condo For Sale
17011 N Bay Rd, Unit 701, Sunny Isles Beach, FL 33160

$321,001
Продажа
Людмила Богатова
Людмила Богатова
Брокер по недвижимости

Детали


  • МЛС номер:A11781311
  • Виртуальный тур: Да
  • Номер квартиры:701
  • Цена предложения: $321,001
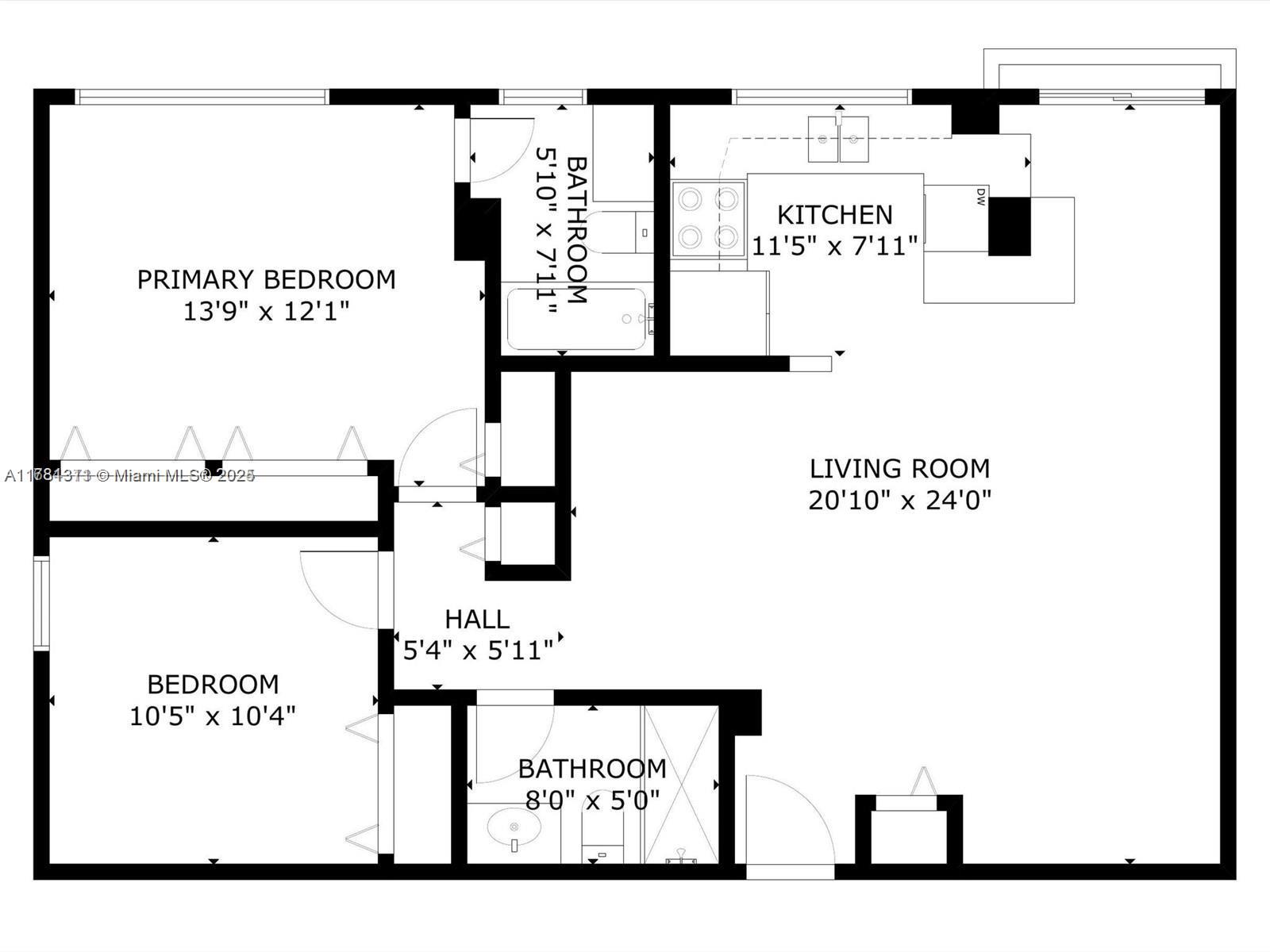
  • Жилая площадь: 894 фут² / 83 м²
  • Цена за фут/метр: $359 / $3,865
  • Комнаты:2
  • Полных ванн:2
  • Обслуживание:$721
  • Налоги:$4,071
  • Год строительства:1979
  • Дата публикации:April 10, 2025
  • Дней на рынке:415

Описание


Experience the luxury living of Sunny Isles Beach at Plaza of the Americas, nested in lush landscaping next to the City's Amphitheater, near the pier's restaurant with Beach Surf & sand. 2 bedrooms / 2 bathrooms, Open kitchen, this property combines style & functionality. Amenities include tennis courts, a heated pool, gym, BBQ area, High-speed internet, 2 covered garage spaces 24/7 Security Guards for complete peace of mind. Nearby shopping centers, restaurants, Milan’s Supermarket, Starbucks, schools (K-8), parks, all within walking distance. Plus, the beach is just a five-minute stroll away! Make it your Home or Stay-cation retreat, or a ready-to-rent Money Maker! Don’t miss this chance to embrace luxury, convenience, and the joy of having the Beach lifestyle you always wanted.

Особенности


  • Полы:CeramicTile
  • Интерьер:ClosetCabinetry, FirstFloorEntry, MainLevelPrimary, Pantry, SittingAreaInPrimary
  • Экстерьер:Barbecue, Courtyard, Deck

Расположение


Price History


Please sign in to view this information

Запросить информацию


Людмила Богатова
Людмила Богатова
Брокер по недвижимости