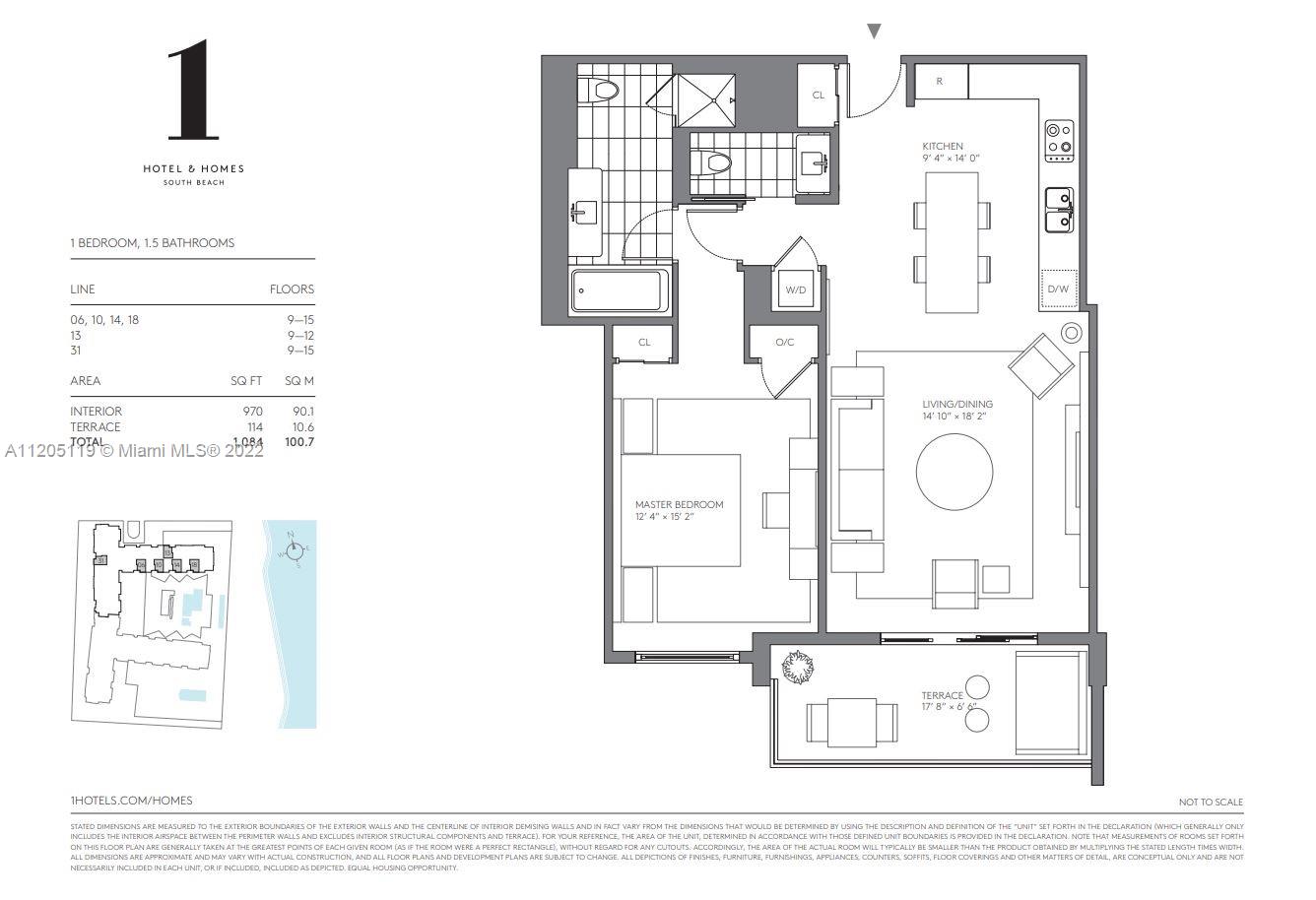
2399 Collins Avenue 1 bedroom Hotel For Sale
102 24th St, Unit 1406, Miami Beach, FL 33139

$2,075,000
Продано
Людмила Богатова
Людмила Богатова
Брокер по недвижимости

Детали


  • МЛС номер:A11205119
  • Виртуальный тур: Да
  • Номер квартиры:1406
  • Цена предложения: $2,240,000
  • Цена продажи: $2,075,000
  • Жилая площадь: 893 фут² / 83 м²
  • Цена за фут/метр: $2,324 / $25,011
  • Комнаты:1
  • Полных ванн:1
  • Неполных ванн:1
  • Налоги:$19,638
  • Год строительства:2015
  • На канале:Да
  • Дата публикации:May 16, 2022
  • Дата продажи: October 20, 2022
  • Дней на рынке:156

Описание


Luxury 1BR/ 1.5BA condo in the beautiful 1 Hotel & Homes. Custom designed, this oceanfront unit features nearly 893 sq. ft. of living space with ocean views. Kitchen features stainless appliances by Sub-Zero and Bosch. Beautiful finishes and flooring throughout. A true five-star living experience, 1 Hotel & Homes offers residents 24-hour concierge service, free Tesla car service, 4 pools, fitness center and spa and more. The short-term rental policy offers lucrative income potential. All of this and more just steps from South Beach’s hottest restaurants, nightlife and shopping. Best price 1 bedroom facing the ocean.

Особенности


  • Полы:Wood
  • Интерьер:BreakfastBar, BedroomonMainLevel, LivingDiningRoom, WalkInClosets
  • Экстерьер:Balcony, SecurityHighImpactDoors
  • На канале:OceanAccess

Расположение


Запросить информацию


Людмила Богатова
Людмила Богатова
Брокер по недвижимости