Michigan Art Villa Condo 2 bedroom Condo For Sale
840 Michigan Ave, Unit 1, Miami Beach, FL 33139

$280,000
Продано
Людмила Богатова
Людмила Богатова
Брокер по недвижимости

Детали


  • МЛС номер:A10372116
  • Виртуальный тур: Да
  • Номер квартиры:1
  • Цена предложения: $295,000
  • Цена продажи: $280,000
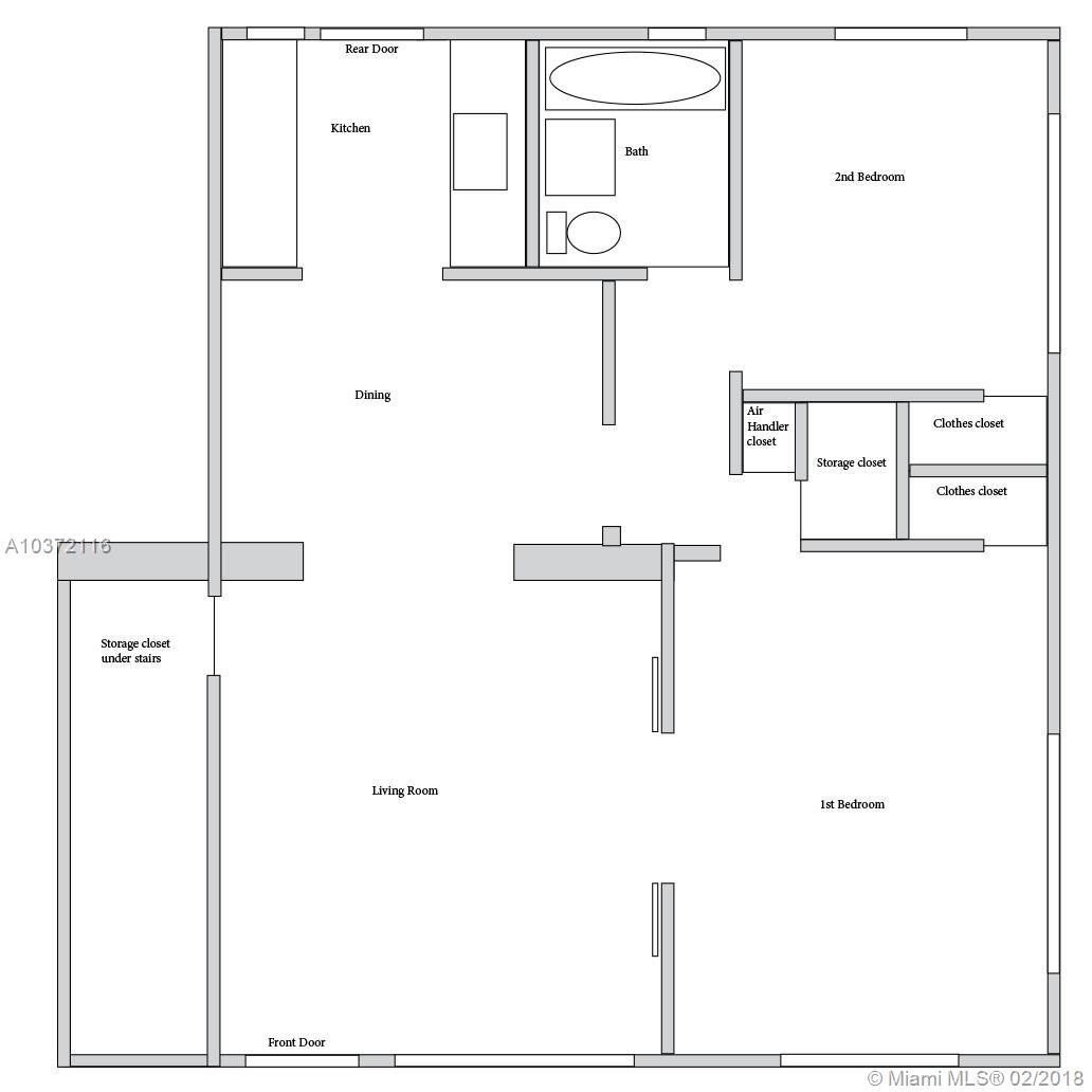
  • Жилая площадь: 910 фут² / 85 м²
  • Цена за фут/метр: $308 / $3,312
  • Комнаты:2
  • Полных ванн:1
  • Обслуживание:$547
  • Налоги:$4,176
  • Год строительства:1947
  • Разрешены животные:Да
  • Дата публикации:November 13, 2017
  • Дата продажи: May 8, 2018
  • Дней на рынке:175

Описание


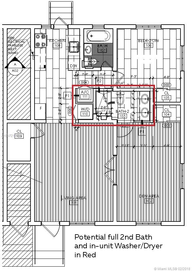
South Beach Hideaway!! Sunny, corner, 900 sq ft in quiet section of Flamingo Park Historic District. Nine-foot ceilings, refinished pine floors, french doors and Deco details. Granite countertops in kitchen. Sold with engineer's plans for a potential full 2nd Bath (see attachment) and in-unit washer/dryer. Central AC and heating. Pets under 30 lbs. Impact windows and doors. 2 closets, one extra large walk-in. Unusually large yard with multiple seating areas and mature Mango, Frangipani, and Mamey trees. Close to beach, Whole Foods, Publix, and Flamingo Park recreational facilities. Within the South Point Elementary school district. Rewired electric, gas availability, new roof 2011, passed 40-year inspection 2012, washer/dryer on premises.

Особенности


  • Полы:Tile, Wood
  • Интерьер:BedroomonMainLevel, FrenchDoorsAtriumDoors, FirstFloorEntry, MainLevelMaster, WalkInClosets
  • Экстерьер:Courtyard, Fence, FruitTrees

Запросить информацию


Людмила Богатова
Людмила Богатова
Брокер по недвижимости